Prodej bytu, 2+kk, 47 m²
Byt 2+kk s nízkými náklady připraven k okamžitému užívání
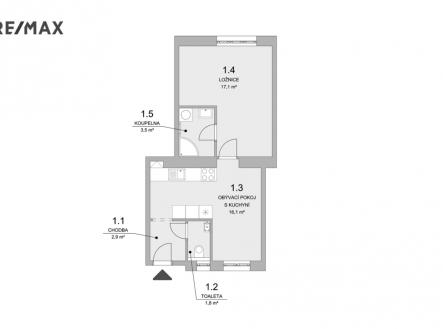
K dispozici vymazlený byt po dokončené rekonstrukci s dispozicí 2+kk o celkové ploše 43 m2 v 2.NP s nízkými náklady za užívání. Byt je po celkově velmi zdařile provedené kompletní rekonstrukci včetně stropů, nových omítek, podlah, odpadů a veškerých elektro rozvodů, vestavěných spotřebičů, kuchyňské linky a koupelny se sprchovacím koutem. Při realizaci byl kladen důraz na kvalitu provedení a správné dodržení technologických postupů.. což Vám zajistí klidné a hlavně bezstarostné užívání svého nového bytu. Byt má orientaci oken z jedné strany na verandu do dvora.. z druhého okna je ničím nerušený výhled do okolí na jihovýchod s prosluněním bytu a případným výhledem na svého plechového miláčka. Byt je dokončen a připraven k okamžitému užívání, náklady včetně fondu oprav činí 1.050,- Kč. Pro upřesnění, doplňující informace mě prosím neváhejte kontaktovat 24/7


