Prodej - kanceláře, 874 m²
Prodej kancelářského prostoru, Oskořínek, ul. Družstevní
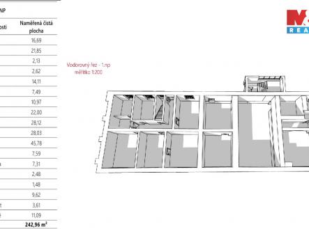
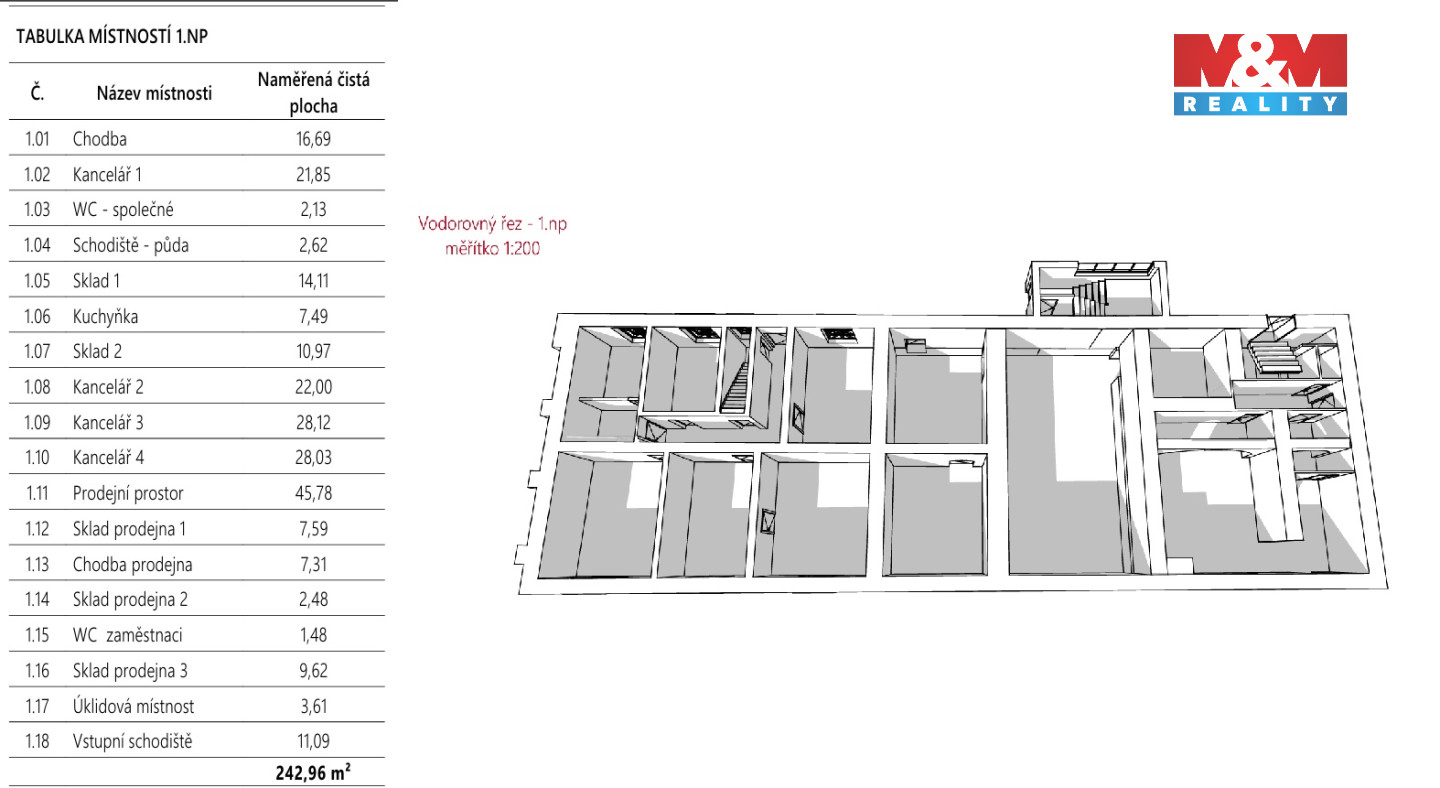
Nabízíme k prodeji prostornou nemovitost v obci Oskořínek, okres Nymburk, tvořenou dvěma spojenými domy s dvěma čísly popisnými a rozsáhlými nebytovými prostory. Celková plocha pozemku je 1.167 m². Oba domy nabízí spoustu místností a prostornou půdu vhodnou k dalšímu rozšíření obytné části. Dále bývalý obchod s parkováním hned vedle vchodu. Jedná se tedy o nemovitost, která je ideální pro podnikání nebo vybudování bytových jednotek. 1.PP - 4 místnosti - 139,53 m² 1.NP - 9 místností - 242,96 m² 2.NP - 13 místností - 631,23 m² Veškeré inženýrské sítě jsou zavedeny, plyn je na hranici pozemku. Vytápění zajišťují elektrická akumulační kamna. Za domem se nachází zahrada o výměře 667 m² s vlastní kopanou studnou. Dobrá dopravní dostupnost - autobusová i vlaková zastávka v blízkosti. V obci Oskořínek je také MŠ, pošta a obchod se smíšeným zbožím. ZŠ je v sousední obci Hrubý Jeseník. Koupi je možné financovat hypotékou, pro kterou vám rádi zařídíme nabídku s výhodnou úrokovou sazbou.


