Pronájem bytu, 2+kk, 94 m²
Pronájem bytu 2+kk, 94 m², Opava, ul. Dolní náměstí
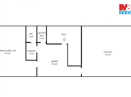
Nabízíme k pronájmu velkorysý byt v historickém srdci Opavy na Dolním náměstí. Jednotka se nachází ve 4. NP udržované kulturní památky. Díky rozloze 94 m² a dvěma prostorným místnostem je byt ideální jako zázemí pro zahraniční zaměstnance nebo management. Hlavní parametry: Kapacita: Velké pokoje umožňují komfortní přespávání i pro více osob. Klidný režim: V domě sídlí kanceláře, proto je vyžadován klid. Ideální pro pracovníky, kteří hledají tiché prostředí pro odpočinek po směnách. Lokalita: Prestižní adresa v centru s veškerou vybaveností v pěší dostupnosti. Stav: Nemovitost je ve velmi dobrém stavu, připravena k okamžitému užívání. Hledáte-li pro své zaměstnance důstojné a klidné bydlení na úrovni, kontaktujte nás pro prohlídku.


