Pronájem bytu, 2+kk, 65 m²
Nájem hezkého bytu 2+kk v Opavě Kateřinkách
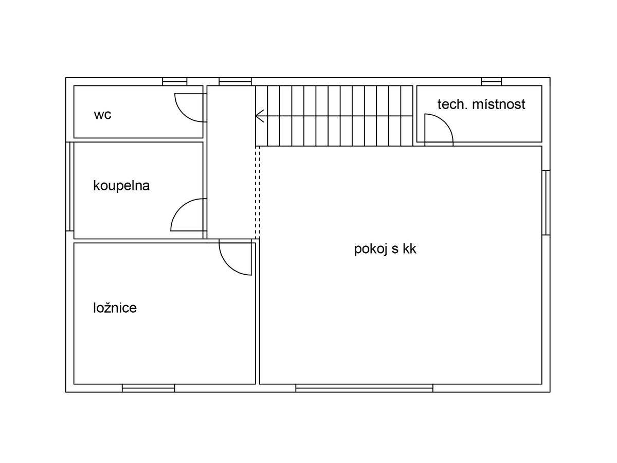
Nabízíme pronájem pěkného bytu v rodinném domě v poblíž ulice Pekařské s dispozicí 2+kk v prvním patře výměře 65 m². Byt v osobním vlastnictví je ve velmi dobrém stavu. Je v něm prostorný a slunečný obývací pokoj s kuchyňským koutem, ložnice s vestavěnými skříněmi, koupelna se sprchovým koutem, WC a technická místnost. K dispozici je parkovací stání! Vytápění vlastním kondenzačním plynovým kotlem. Dům je zateplen, okna jsou plastová, v obývacím pokoji je velké francouzské okno. Výše měsíčního nájmu je 16.500 Kč + zálohy na služby (6.000,- Kč pro 2 osoby). Kauce je ve výši dvou nájmů, tedy 33.000,- Kč. Prohlídka bytu je možná po předchozí domluvě.


