Prodej - dům/vila, 175 m²
Prodej vícegeneračního domu, 175 m², pozemek 776 m² – Třemblat Ondřejov
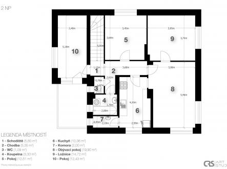
V obci Třemblat Ondřejov, nabízíme k prodeji prostorný vícegenerační dům se dvěma bytovými jednotkami. Dům je kompletně podsklepený, disponuje garáží, zahradním domkem a neobydlenou půdou. Celková zastavěná plocha domu činí 121 m² a nachází se na pozemku o velikosti 776 m². V 1.NP se nachází bytová jednotka o dispozici 3+1 s výměrou 88 m², která zahrnuje kuchyni, obývací pokoj, dvě ložnice, koupelnu, WC a komoru. V 2.NP je k dispozici druhý byt 4+1 o velikosti 87 m² s kuchyní, obývacím pokojem, třemi ložnicemi, koupelnou, WC, komorou a balkónem. Celková podlahová plocha rodinného domu činí 175 m². Suterén domu je řešen velmi prakticky – je zde garáž, kotelna, několik skladovacích místností a uhelný sklad. Dům je ve velmi dobrém technickém stavu a v poslední době prošel řadou úprav. Má nová plastová okna s trojskly, novou fasádu se zateplením a střechu po rekonstrukci, která je stará přibližně deset let. Objekt je odizolovaný a připravený k okamžitému bydlení. Vytápění je řešeno dvěma způsoby – automatickým kotlem na uhlí nebo tepelným čerpadlem vzduch/voda, mezi kterými lze jednoduše přepínat. Dům je napojený na kanalizaci a vodu zajišťuje jak vlastní studna, tak i obecní vodovod. Komín je vyvložkovaný s platnou revizí. Nemovitost je ideální pro vícegenerační bydlení. Dům zároveň nabízí do budoucna možnost jednoduché úpravy na dvě plně samostatné bytové jednotky se zajištěným soukromím pro každou domácnost. Díky půdě s možností vestavby má navíc nemovitost i do budoucna zajímavý potenciál pro rozšíření obytného prostoru. Zahrada poskytuje dostatek prostoru pro odpočinek i užitek – nachází se zde vzrostlý strom, menší políčko k pěstování a také zahradní domek. Obec Třemblat je součástí Ondřejova, který nabízí základní občanskou vybavenost – mateřskou i základní školu, obchody, provoz obecního úřadu i lékařskou ordinaci. Díky své poloze je lokalita velmi dobře dostupná do Prahy, a to jak autem po dálnici D1, tak i autobusovými spoji, které zajišťují pravidelné spojení s okolními městy a hlavním městem. Místo je vyhledávané pro klidné bydlení v blízkosti přírody, přesto však s dobrou dopravní dostupností. Pokud Vás tato nabídka zaujala, neváhejte kontaktovat makléře pro více informací či sjednání prohlídky.


