Pronájem bytu, 2+kk, 55 m²
Pronájem bytu 2+kk, SLAVONÍNSKÉ ZAHRADY - dům H1
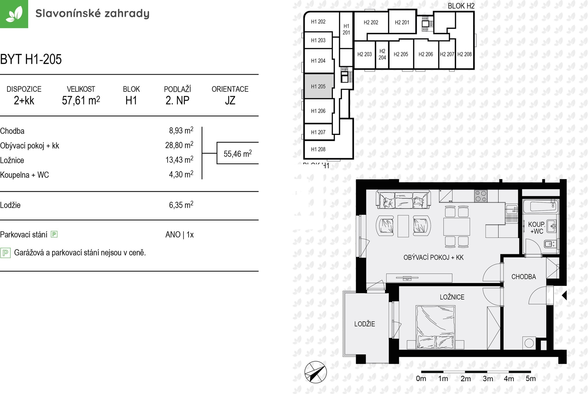
Ve výhradním zastoupení majitele Vám realitní kancelář ALLE reality&development s.r.o. nabízí pronájem bytu v příjemné a klidné lokalitě města Olomouce na Loudově ulici. Úplně nový byt H1-205 o dispozici 2+kk má podlahovou plochu 57,61m², balkon o velikosti 6,35 m² a nachází se ve 2NP bytového domu s nízkým počtem bytových jednotek. Vysoký komfort bydlení je zajištěn moderním standardním vybavením: podlahové vytápění po celé ploše jednotek, obložkové zárubně, vinylové podlahy, keramické obklady. Kuchyň je plně vybavená ledničkou, mrazákem, troubou a varnou deskou s digestoří. V ložnici se nachází úložná skříň a postel s matrací a v koupelně si můžete dopřát odpočinek ve vaně. Součástí bytu je jedno garážové stání a komora. Velkou předností lokality je dostatek zeleně, odpočinková zóna kolem přírodního rybníku Hamrys, cyklistická stezka, to vše pro čas odpočinku. Skvělá občanská vybavenost, vynikající dostupnost MHD včetně nově prodloužené tramvajové tratě, a bezproblémový výjezd na dálnici naopak usnadní pracovní část dne. Doporučujeme prohlídku s makléřem.


