Prodej - pozemek pro bydlení, 2 254 m²
Prodej stavebního pozemku, Olomouc - Svatý Kopeček
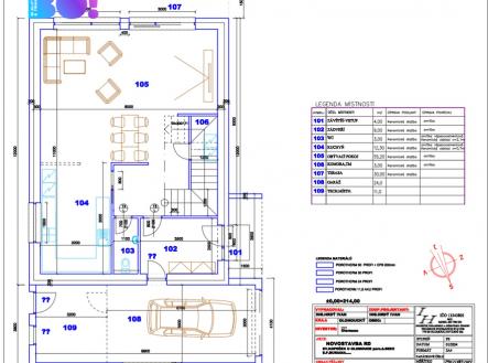
Exkluzivně nabízíme k prodeji rozsáhlý stavební pozemek se schváleným stavebním projektem o celkové rozloze 2 254 m² v klidné a rodinné lokalitě Svatý Kopeček, jen kousek od Olomouce. Tento pozemek je ideálním místem pro výstavbu dvoupatrového domu o dispozici 4+kk s garáží, který má zastavěnou plochu 137 m² a užitnou plochu 180 m². V tomto projektu se snoubí moderní architektura s funkčním uspořádáním interiéru, které je přizpůsobeno pro pohodlný život rodiny s dětmi. V přízemí najdeme - vstup o rozloze 4 m², zádveří o velikosti 9 m², WC 3 m², kuchyň 12,3 m², prostorný obývací pokoj o rozloze 55,2 m², komoru 3 m², terasu o velikosti 30 m², garáž 24 m² a technickou místnost 11 m². V prvním patře je hala o dispozici 16,2 m², koupelna 8,25 m², WC 3 m², pokoj 1 o velikosti 21 m², pokoj 2 o velikosti 21 m², ložnice o rozloze 20 m² a šatna 5 m². Vytápění je navrženo podlahovým systémem, vytápění - tepelné čerpadlo + navrženo alternativní topení krbem. Energetická náročnost budovy je dle projektu zařazena do třídy B. Pozemek se nachází v dostupnosti veškeré občanské vybavenosti, v blízkosti je mateřská a základní škola. Svatý Kopeček je velmi dobře obsluhován městskou hromadnou dopravou z Olomouce. Kromě toho budete mít v blízkosti krásnou přírodu, která vás zve k procházkám a rodinným výletům. Atraktivní lokalitu doplňuje i blízkost ZOO Olomouc či Baziliky Navštívení Panny Marie, které nabízejí skvělé možnosti pro rodinné výlety a volnočasové aktivity. Pozemek se výborně hodí pro rodiny, které hledají prostorný dům s velkou zahradou, ideální pro všestranné využití. Zahrada poskytuje dostatek prostoru pro venkovní aktivity, zahradničení nebo pořádání rodinných setkání. Celkově se jedná o ideální místo pro rodiny, které hledají komfortní a bezpečné bydlení v krásné přírodě, a zároveň mají rádi dostupnost městských služeb. V případě zájmu o prohlídku nás neváhejte kontaktovat. S vyřízením financování Vám také rádi pomůžeme.


