Prodej - dům/vila, 143 m²
Prodej rodinného domu Droždín
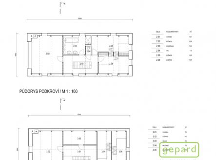
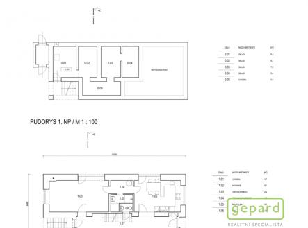
Jedinečný rodinný dům v Droždíně s nádherným výhledem Hledáte moderní a pohodlné bydlení v klidné lokalitě, které splní vaše představy o dokonalém domově? Tento dům po velmi zdařilé a kompletní revitalizaci je přesně to, co hledáte! - Lokalita: Nachází se na malebném místě s dechberoucím výhledem na město. - Stavba a vybavení -> dům s nízkými náklady na vytápění - Přízemí je zděné (cihla), patro je dřevostavba, zatepleno, obloženo, plastová okna - Vytápění podlahové – elektrické rohože -> nízký tarif elektřiny -> nízké náklady - Vlastní vrtaná studna, přípojka plynu, jímka - Design: Elegantní kombinace přírodního dřeva – sibiřský modřín a moderního stylu. - Komfort: Podsklepený dům s možností rozšíření podkroví podle vašich představ. Dispozice a plocha: - 1. NP (64,6 m²): Prostorná kuchyně, obývací pokoj, technická místnost, koupelna, samostatné WC. - 2. NP (78,5 m²): Tři ložnice, koupelna, WC. - Podkroví (47,3 m²): Možnost úpravy na další obytný prostor. - Suterén: 34,3 m² pro úložné prostory. - Celková podlahová plocha 143 m² + suterén 34,3 m² + Podkroví 47,3 m². - Celková plocha pozemku: 386 m². Proč právě tento dům? ✔ Nízká spotřeba energie na vytápění ✔ Moderní rekonstrukce v kombinaci s přírodními materiály. ✔ Klidná a prestižní lokalita, ideální pro rodiny. ✔ Výborná dopravní dostupnost a blízkost přírody. Tento dům nabízí perfektní kombinaci pohodlného bydlení, skvělé dopravní dostupnosti a nezaměnitelného kouzla přírody. Ideální místo pro váš nový domov! PENB nedodán, proto uveden G. Cena je stanovena na 10.490.000,-Kč. V ceně jsou zahrnuty všechny poplatky za právní servis a provize RK. Zajišťujeme profesionální servis a nabídku financování nemovitosti. Kontaktujte makléře pro bližší informace a domluvte si svoji prohlídku, co nejdříve.


