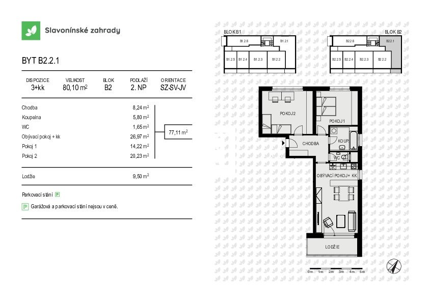
Prodej bytu, 3+kk, 80 m²
Prodej novostavby bytu 3+kk, Olomouc - Loudova, dům B2
Z pověření developera Vám realitní kancelář ALLE reality&development s.r.o. v exkluzivním zastoupení nabízí již V. etapu úspěšného projektu na ulici Loudova v Olomouci, jež navazuje prodejem – budovy B. Projekt umožňuje svým rezidentům dostupné bydlení v příjemné a klidné lokalitě města Olomouce. Více informací najdete na webových stránkách alle. Byt B2.2.1 o dispozici 3+kk má podlahovou plochu 80,1 m², terasa o velikosti 9,5 m² a nachází se ve 2.NP bytového domu s nízkým počtem bytových jednotek. Velkou předností lokality je dostatek zeleně, odpočinková zóna kolem přírodního rybníku Hamrys, cyklistická stezka, to vše pro čas odpočinku. Skvělá občanská vybavenost, vynikající dostupnost MHD včetně nově prodloužené tramvajové tratě, a bezproblémový výjezd na dálnici naopak usnadní pracovní část dne. Vysoký komfort bydlení je zajištěn moderním standardním vybavením: podlahové vytápění po celé ploše jednotek, obložkové zárubně, vinylové podlahy, keramické obklady - vše dle volby klienta a také základní příprava pro venkovní žaluzie. Garážová stání a komory k dokoupení jsou samozřejmostí. Vyberte si své vysněné bydlení včas! Klient hradí nad rámec kupní ceny poplatek za právní a administrativní servis.


