Prodej - dům/vila, 205 m²
Prodej nízkoenergetického RD - Olomouc, Holice
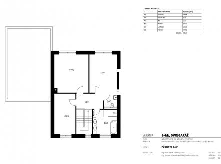
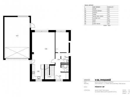
Realitní kancelář ALLE reality&development s.r.o. Vám v exkluzivním zastoupení developera nabízí projekt nízkoenergetických samostatně stojících rodinných domů v Olomouci. Jedná se o ucelený komplex osmi samostatně stojících domů o dispozici 4+kk, nebo 5+kk s garáží. Domy jsou zděné, dvoupodlažní s možností mnoha klientských změn a nadstandardních prvků. RD 4 o dispozici 4+kk/5+kk má užitnou plochu 205 m2 a pozemek 440 m2. Dominantou přízemí je velkorysý obytný prostor s jídelnou, prosvětlený velkoformátovými okny, se vstupem na terasu a zahradu. V přízemí se dále nachází jeden pokoj (pracovna/ložnice) s výměrou 13 m2, technická místnost, koupelna se sprchovým koutem a toaletou. V patře se pak nachází tři ložnice s nadstandardními výměrami a prostorná koupelna s vanou, sprchovým koutem, dvou umyvadlem + samostatné WC. Garáž o výměře 48 m2 má přístup i na zahradu. Pohodlně zde zaparkujete dvě auta, díky nadstandardní délce garáže zůstává dostatek úložného prostoru na zahradní techniku, kola a jiné sportovní vybavení. RD 4 má aktuálně základovou desku, k nastěhování bude v roce 2027. Projekt rodinných domů je realizovaný v městské části Olomouc – Holice. Jedná se o klidnou lokalitu poblíž širšího centra města. Lokalita je oblíbená především pro klidné rodinné bydlení v moderní zástavbě, se skvělou dopravní obslužností a občanskou vybaveností. V blízkosti projektu najdete odpočinkovou zónu rybník Amerika. Milovníci přírody jsou za několik minut v Holickém lese. Poloha lokality zajišťuje vynikající dopravní dostupnost do centra Olomouce, ale i na dálniční koridory. Domy splňují veškeré požadavky moderního, komfortního a kvalitního bydlení. Důraz je kladen na kvalitu materiálů a jednotlivých prvků. Nároční klienti jistě docení možnost a variabilitu klientských změn. V rámci projektu je možné žádat o dotaci na pasivní dům s PENB A. Klient hradí nad rámec kupní ceny poplatek za právní a administrativní servis.


