Prodej bytu, 2+kk, 65 m²
Prodej bytu 2+kk, Eduarda Hamburgera, Olomouc-město
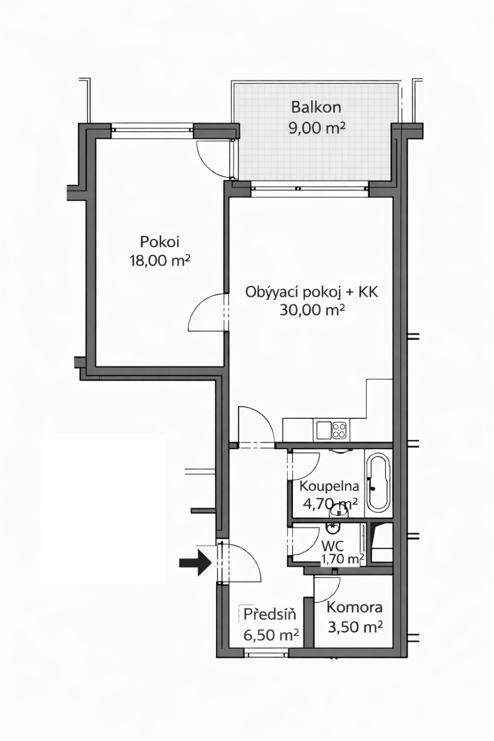
Nabízíme k prodeji byt v novostavbě o dispozici 2+kk s podlahovou plochou 65,3 m², který se nachází v 6. podlaží moderního bytového domu s výtahem. Vyšší patro zajišťuje dostatek denního světla, větší míru soukromí a klidné bydlení. Dispozice bytu je řešena velmi prakticky a s důrazem na komfort. Obytný prostor s kuchyňským koutem má výměru 30 m², ložnice 18 m². Součástí bytu je dále komora, samostatné WC a předsíň s dostatkem úložného prostoru. Díky velkorysým proporcím jednotlivých místností působí byt velmi vzdušně a otevřeně. K bytu náleží také balkon o velikosti 9 m², který přirozeně rozšiřuje obytný prostor a nabízí příjemné místo k posezení. Rozměry: Předsíň 6,50 m² Obývací pokoj s kuchyňským koutem 30,00 m² Pokoj / ložnice 18,00 m² Koupelna 4,70 m² Samostatné WC 1,70 m² Komora 3,50 m² Užitná plocha bytu 64,40 m² Balkón 9,00 m² Měsíční platby do SVJ činí 3 115 Kč, z toho fond oprav pouze 195 Kč. U novostavby se jedná o velmi příznivé provozní náklady, které znamenají nízkou zátěž v současnosti i do budoucna. Byt tak dává smysl nejen pro vlastní bydlení, ale také jako stabilní investiční příležitost. Byt byl kolaudován v roce 2022. Lokalita – ulice Eduarda Hamburgera, Olomouc: Byt se nachází v atraktivní a klidné části města, přitom s výbornou dostupností centra Olomouce. V okolí je plná občanská vybavenost – obchody, restaurace, kavárny, školy i školky, parky a služby v docházkové vzdálenosti. Centrum města je snadno dostupné pěšky i MHD. Byt je ihned k nastěhování. V případě zájmu se na mě neváhejte obrátit. Bytem Vás rád provedu.


