Prodej bytu, 5+kk, 177 m²
177 m² v srdci Olomouce
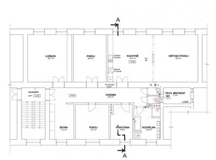
Jen málokdy se objeví příležitost bydlet v místě, kde se snoubí noblesa staré Olomouce s pohodlím moderního života. Tento výjimečný byt o rozloze 177 m² v ulici Nešverova v historickém jádru města je přesně takovou příležitostí. Byt vznikl spojením dvou jednotek a nabízí tak mimořádně velkorysé prostory. Už při vstupu vás okouzlí vysoké stropy a dvoukřídlé dveře, které vyprávějí příběh domu s dlouhou historií. Nadstandardní výměra pokojů působí vzdušně a reprezentativně. Dispozice bytu je navržena s ohledem na potřeby početné rodiny. Dlouhá chodba prochází středem celého bytu a po obou jejích stranách jsou dveře do jednotlivých pokojů. Vlevo se nachází prostorná ložnice (28,1m²), za ní dětský pokoj (20,9m²), kuchyně (28,7m²) s obývacím pokojem (28,4m²), vpravo poté šatna (11,8m²), dětský pokoj (15,7m²), pracovna (9,8m²) a koupelna (10,8m²). Naproti vstupním dveřím, na konci chodby, se nachází samostatná toaleta a technická místnost. Historické prvky bytu doplňují moderní technologie: podlahové vytápění pro pocit tepla a pohodlí, centrální vysavač pro snadnou údržbu a vstupní dveře v nejvyšší bezpečnostní třídě, které zajistí klidný spánek. Ulice Nešverova je tichou součástí historického centra, jen pár kroků od Dolního a Horního náměstí se Sloupem Nejsvětější Trojice, kavárnami, galeriemi i kulturním životem. Na dosah máte i Smetanovy a Čechovy sady, které vybízejí k procházkám, sportu i rodinným odpoledním piknikům. Parcela pro výstavbu obytného domu byla zakoupena od města roku 1903. Náčrty stavby vznikly ve Vídni na ústředním řádovém ředitelství a následně byl stavebním úřadem v Olomouci zpracován prováděcí projekt (Karl Panitschek, Carl Liwanètz a Franz Bernkopf). Na stavbě pracovalo 320 dělníků. Hmotově neobarokní čtyřkřídlá budova s manýristickými detaily a tradičními kamennými portály s nádvořím, je pozdní obdobou vídeňského typu Wohnof. Tento byt není jen adresou. Je to domov, který propojuje ducha historie s komfortem současnosti, prostor, kde každý detail podtrhuje noblesu a kde se rodinný život odehrává v kulisách staré Olomouce. Pokud hledáte výjimečné bydlení, které vám nabídne víc než jen čtyři stěny, Nešverova 1 je tou správnou volbou. PENB nebyl dodán, proto je uvedena energetická třída G. Pro více informací a sjednání prohlídky mne kontaktujte.


