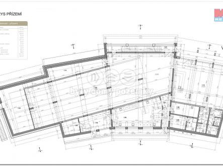
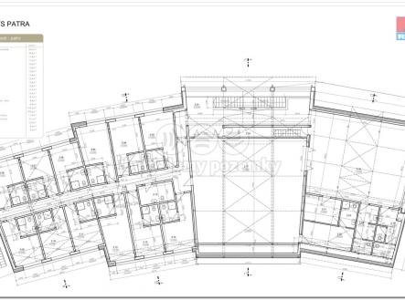
Prodej - obchodní prostor, 1 076 m²
Prodej multifunkčního komplexu pro 300 lidí 1076m2, Okrouhlo
Nabízíme k prodeji novou, moderní a energeticky úspornou komerční nemovitost v centru obce Okrouhlo, pouhých 10 km jižně od Prahy. Tato novostavba má dvě nadzemní podlaží, s celkovou užitnou plochou 1076 m². Má dva veliké na sebe napojené sály, lezeckou stěnu, přípravu na 4 bowlingové dráhy, restauraci s barem, ubytování až pro 30 osob, vlastní rybník, tenisový kurt, a minigolfové hřiště. Skeletová konstrukce zajišťuje flexibilitu využití pro různé obchodní a servisní činnosti. Na pozemku o rozloze 4178 m² je k dispozici parkování pro 19 aut. Budova je vybavena podlahovým vytápěním a třemi tepelnými čerpadly, která ohřívají i teplou vodu, vzduchotechnikou s rekuperací a úsporným LED osvětlením. Bezpečnost zajišťuje moderní zabezpečovací systém. Díky minimálnímu nutnému dennímu výdělku 23 000 Kč se investice s desetiletou návratností jeví jako velmi atraktivní. Okrouhlo, obklopené přírodními krásami, nabízí skvělé podmínky pro podnikání i relaxaci. Energetická náročnost budovy je B.


