Prodej - dům/vila, 411 m²
RD 11+3 v obci Ohrobec
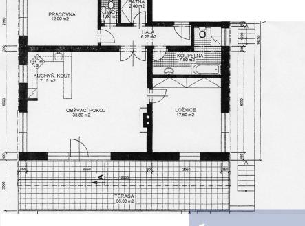
Nabízíme k prodeji nadstandardně veliký rodinný dům o 3 bytových jednotkách v obci Ohrobec, okr. Praha - západ. Dům byl kolaudován v roce 2009. Celková obytná plocha činí cca. 375 m (z toho balkóny 3+18 m2 a terasa 36 m2) a užitná plocha činí 411 m včetně sklepu a zádveří. Pozemek má celkovou výměru 1.132 m. Dům je dvoupodlažní, částečně podsklepený (pod terasou), tvořený třemi byty se společným hlavním vchodem, přičemž každý byt má ze společného zádveří za hlavním vchodem vlastní vstup. Byt A (výměra bytu cca. 125 m včetně terasy 36 m) je umístěn v 1. NP a je tvořen obývacím pokojem (s krbem) propojeným s kuchyní a jídelnou a vstupem na terasu, ložnicí, pracovnou, šatnou, koupelnou s WC, samostatným WC, zádveřím a chodbou. Byt B (výměra bytu cca. 126 m včetně balkónu 3 m) je mezonetový a je umístěn částečně v 1. NP (65 m) a je tvořen kuchyní a jídelnou a spíží, obývacím pokojem (příprava na krb), nedokončenou koupelnou, samostatným WC a chodbou a druhá část bytu v 2. NP (58 m včetně balkónu 3 m) je tvořena 3 ložnicemi (jedna z nich s balkónem) a koupelnou s WC, přičemž tato část bytu není stavebně dokončena. Byt C (výměra bytu cca. 125 m včetně balkónu 18 m) je umístěn v 2. NP a je tvořen obývacím pokojem propojeným s kuchyní a jídelnou a vstupem na balkón, 3 x ložnicí (jedna z nich se vstupem na balkón), komorou, koupelnou s WC, samostatným WC s bidetem a chodbou. Každý byt má vlastní měření elektrické energie. Dům je cihlový (Porotherm 48), okna plastová s izolačním 2-sklem, střecha z pálené tašky. Vytápění domu je řešeno tepelným čerpadlem napojeným na podlahové topení. Ohřev TUV tepelným čerpadlem do zásobníku 400 l. Dům je napojen na elektřinu, vodovod a kanalizaci. Na zahradě instalován polozapuštěný bazén s technologií, zapuštěná nádrž na dešťovou vodu 9 m3 kůlna s dřevníkem a voliérou. Za vjezdovou bránou na DO je komfortní stání pro 6 aut. Dům je umístěn ve velmi lukrativní lokalitě jižně od Prahy, cca. 2 km od Vltavy, na okraji Přírodního parku Střed Čech. Vynikající dopravní dostupnost na dálnici D0 (6 km), po prodloužení trasy D metra to bude na metro 7 km. MHD přímo u domu (BUS 331 metro Opatov). V obci je školka a základní škola, potraviny a restaurace. Vynikající a žádaná lokalita pro bydlení. K dispozici po dohodě.


