Prodej - dům/vila, 219 m²
Vícegenerační rodinný dům 219 m2 se stodolou u Poděbrad
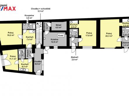
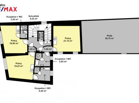
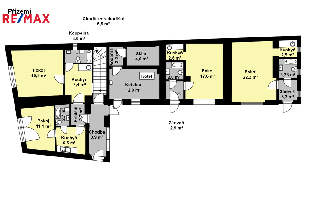
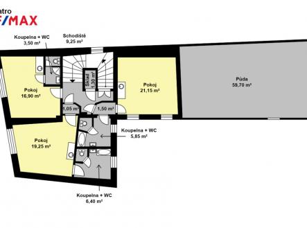
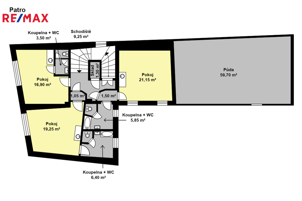
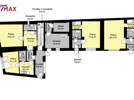
Nabízíme k prodeji prostorný rodinný dům se zpevněným nádvořím a stodolou v obci Odřepsy, 5 km od centra Poděbrad a 4 km od nájezdu na dálnici D11. Tato atraktivní poloha a skvělá dopravní dostupnost Poděbrady, Kolín, Praha, Hradec Králové) jsou velkou, nikoliv však jedinou předností nabízené nemovitosti. Patrový zděný dům s obytnou přístavbou do dvora aktuálně nabízí na 219 m2 užitné plochy ve dvou podlažích, které lze vzhledem k dispozičnímu členění využít k vícegeneračnímu bydlení, zrekonstruovat na prostorný jednogenerační rodinný dům s bytem pro rodiče v přízemní přístavbě nebo pokračovat ve využití objektu k pronájmu jednotlivých bytových prostorů. Zde se nabízí rekolaudace na bytový dům a případně i následný rozprodej po nově vzniklých bytových a nebytových jednotkách. Dispoziční členění nemovitosti i jejích jednotlivých částí je patrné z přiložených půdorysů. Dvůr je dlážděný betonovými deskami a je využívaný k parkování. Je uzavřen objektem zděné stodoly, členěné na garáž, centrální úložný prostor, dílnu a podkrovní místnost. Ze stodoly je přístupná malá zahrádka. Dům má elektrickou přípojku 220/380 V, rozvody elektro jsou v mědi. Jednotlivé bytové jednotky mají vlastní podružné elektroměry. Objekt je napojený na obecní vodovod, ale využívá vlastní vodu ze studny. Odpadní vody jsou svedeny do tlakové kanalizace. Voda i odpady jsou vedeny v plastu. Vytápění celého objektu zajišťuje automatický kotel se zásobníkem na tuhá paliva - doplnění zásoby paliva jednou za 2-3 dny. Více technických detailů na požádání u makléře. Nemovitost je vhodná pro trvalé bydlení pro zájemce, kteří potřebují prostor pro své podnikání nebo koníčky, pro vícečetnou rodinu či vícegenerační rodinu nebo je vhodným objektem pro podnikatelský projekt. Bližší informace o nemovitosti a možnost sjednání prohlídky u makléře zakázky.


