Prodej bytu, 3+1, 91 m²
Prodej bytu 3+1, 91 m², Nýrsko, ul. Náměstí
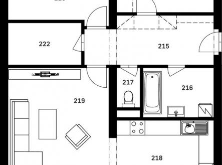
Nabízíme k prodeji byt 3+1 o ploše 91 m² ve 2. patře novostavby v centru Nýrska, pár kroků od náměstí. Byt je ve výstavbě, což umožňuje budoucímu majiteli dokončit interiér dle vlastních představ. V ceně jsou podlahy, dveře, obklady a sanita (bez kuchyňské linky). Nadstandardní vybavení je možné za příplatek. K bytu lze dokoupit garáž. Práce na bytě se začne provádět okamžitě po složení zálohy. Vytápění a ohřev vody zajišťuje moderní plynový kotel. Budova splňuje energetickou třídu B díky trojsklům, zateplení a venkovním žaluziím. Výhodou je bezbariérový vstup, výtah a čipové otevírání. Praktická je i šatna a komora. Nýrsko se nachází 17 km od Klatov a nabízí kompletní občanskou vybavenost, sportovní vyžití i výborné dopravní spojení. Vizualizace jsou pouze informativní dle půdorysu bytu. Pokud Vás naše nabídka zaujala, konktaktujte našeho makléře.


