Prodej - dům/vila, 220 m²
Prodej rodinného domu v Nymburce, ul. Kolínská
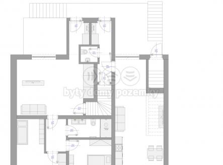
Nabízíme vám rodinný dům s historií a různými možnostmi využití, situovaný v oblíbené lokalitě Nymburk – Zálabí. Nemovitost se nachází v živější části města, zároveň však poskytuje dostatek soukromí a klidného zázemí. Dům má tři podlaží – dvě nadzemní a jedno podzemní – a skýtá široké možnosti využití, ať už pro bydlení, podnikání nebo jejich kombinaci. Celková plocha pozemku činí 542 m², což umožňuje parkování na pozemku i prostor pro zahradu. Objekt je aktuálně v částečné rekonstrukci se záměrem vybudování tří samostatných bytových jednotek. K dispozici je také projektová dokumentace pro dokončení rekonstrukce. CENA K JEDNÁNÍ. V případě zájmu o prohlídku nebo dalších dotazů nás kontaktujte. Pokud zamýšlíte financovat koupi hypotékou, zajistíme vám nabídku s nejnižší úrokovou sazbou.


