Prodej - dům/vila, 134 m²
Prodej rodinného domu po rekonstrukci 4+kk, pozemek 206 m², ulice Ječná, Nymburk
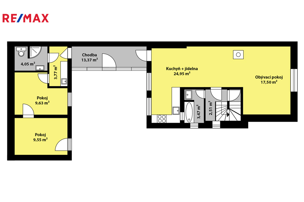
Dovolujeme si Vám nabídnout k prodeji nově zrekonstruovaný rodinný dům v jedné z nejklidnějších částí města Nymburk – v ulici Ječná. Tato atraktivní adresa nabízí nejen příjemné a tiché prostředí, ale také výbornou dostupnost do centra města a veškerou občanskou vybavenost v dosahu. Dům prošel kompletní a kvalitní rekonstrukcí v letech 2020/2021 a je připraven splnit všechny vaše představy o moderním a komfortním bydlení. V přízemí domu se nachází prostorný obývací pokoj propojený s jídelnou a moderním kuchyňským koutem. Dům je dále propojen prosklenou chodbou s další samostatnou jednotkou, která nabízí vlastní kuchyňský kout, pokoj, koupelnu a vstupní pokoj – ideální pro hosty, vícegenerační bydlení nebo pronájem. V patře najdete dva útulné pokoje vhodné jako ložnice, dětské pokoje či pracovny. Samostatná bytová jednotka má vlastní elektroměr, což umožňuje nezávislé užívání nebo pronájem. V domě je ústřední topení ohřívané plynovým kotlem, které majitel nepoužívá. Využívá kombinaci krbových kamen a občasného přitápění konvektory, jelikož je polovinu času v domě sám a v pokoje jsou prázdné. Zdrojem tepla v současné době jsou krbová kamna v obývacím pokoji s komínem, která efektivně vyhřívají i horní patro (komín má revizi). Samostatný byt je vybaven přímotopy, ale je možné i vytápění plynem - radiátory. K dispozici je obecní voda i vlastní studna na pozemku s čerpadlem a hadicí pro zalévání zahrady. Teplou vodu zajišťují dva elektrické bojlery (80 l a 25 l), přičemž menší bojler se automaticky doplňuje z většího v případě, že se teplá voda spotřebuje. Bojlery jsou umístěné v suterénu domu. Tepelné fólie na plastových oknech a francouzském okně na stinné straně domu zajišťují efektivnější tepelnou izolaci a příjemnější prostředí v interiéru. V každé místnosti je navíc síť proti hmyzu. Protihluková stěna poskytuje maximální klid a soukromí. Dům je zateplený, což zajišťuje nízké provozní náklady a energetickou úspornost. Internetové připojení je zajištěno od společnosti MARCOMNET. Tato nemovitost je ideální volbou pro ty, kteří hledají klidné a bezpečné bydlení s veškerým komfortem moderního života. Neváhejte mě kontaktovat pro více informací nebo domluvení prohlídky tohoto výjimečného domu v Nymburce.

