Prodej bytu, 1+1, 52 m²
Prodej bytu 1+1 se zasklenou lodžií v osobním vlastnictví, Nymburk
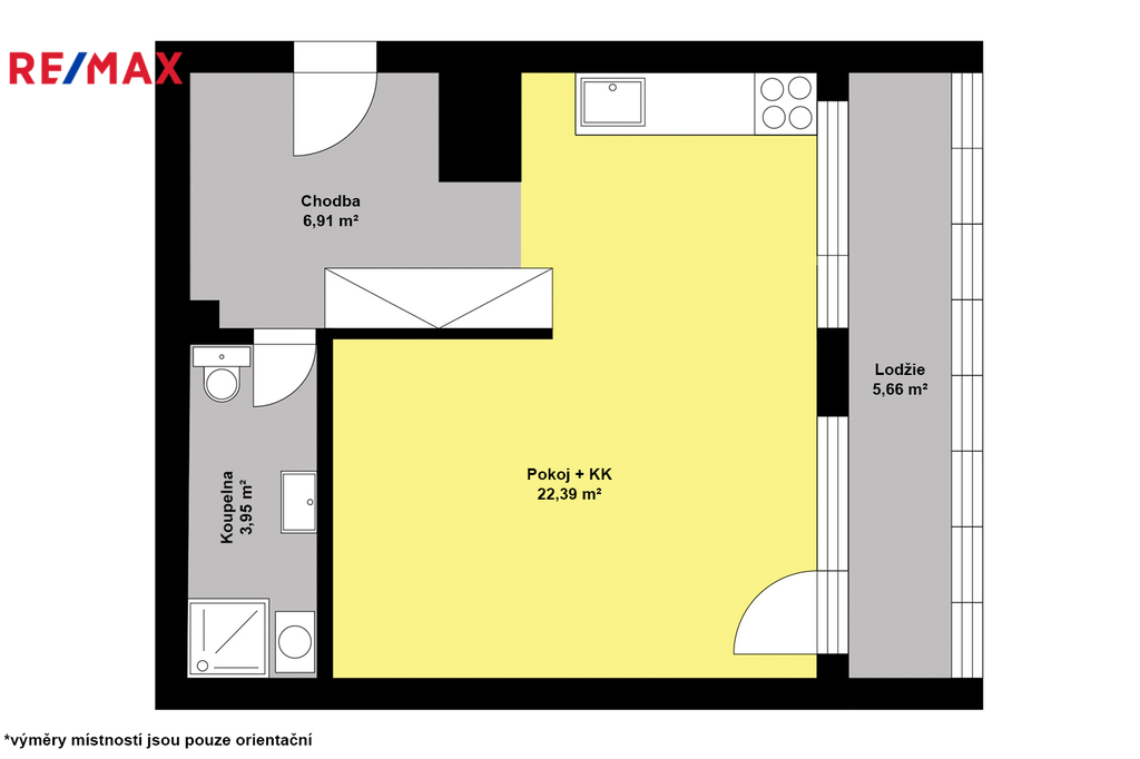
Dovoluji si Vám nabídnout prodej bytu 1+1 se zasklenou lodžií, v ulici Letců R.A.F. v Nymburce. Bytová jednotka má celkovou užitnou plochu 40,77 m2 včetně lodžie a nachází se v 1. nadzemním podlaží (zvýšeném přízemí) panelového domu s výtahem. Dispozice bytu: předsíň (6,25 m2), obývací pokoj (14,80 m2) s kuchyní (9,10 m2), lodžie (6,72 m2), koupelna se sprchovým koutem a toaletou (3,90 m2). Byt má plastová okna se žaluziemi. Podlaha PVC, keramická dlažba. K bytu náleží prostorný zděný sklep o velikosti 11,50 m2. Dále je v domě k dispozici kolárna a sušárna. Dům je zateplený a nachází se na revitalizovaném sídlišti plném zeleně. V těsné blízkosti je veškerá občanská vybavenost (zastávka MHD, základní škola, mateřské školy, dětská hřiště, obchody s potravinami, poliklinika, restaurace a další). V okolí domu je dostatek parkovacích míst. Nemovitost není nijak zatížena a lze ji financovat hypotékou, kterou Vám ráda pomohu za výhodných podmínek zařídit. Pro další informace, nebo při zájmu o prohlídku mne kontaktujte, ráda Vám nemovitost představím.


