Prodej bytu, 4+kk, 106 m²
Mezonetový byt 4+kk – Rezidence Tyršovka
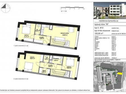
Nabízíme k prodeji nadstandardní mezonetový byt 4+kk o velikosti 105,9 m², který se nachází ve 3. a 4. nadzemním podlaží objektu B v rámci projektu Rezidence Tyršovka v centru Nymburka. Dokončení výstavby je plánováno na 2Q roku 2027. Dispozice bytu je navržena s důrazem na komfort, dostatek prostoru a přirozené oddělení denní a klidové části. Mezonetové řešení přináší vzdušnost a nadstandardní charakter bydlení, který ocení zejména rodiny nebo klienti hledající prostorný domov v moderním projektu. O projektu: Rezidence Tyršovka přetváří bývalý průmyslový areál s historickou hodnotou v moderní a komfortní bydlení. Součástí projektu je uzavřený vnitroblok s japonskou atriovou zahradou, odpočinkovými zónami, dětským hřištěm a místy pro relaxaci. Objekt je vybaven výtahem a nabízí pohodlný přístup do jednotlivých podlaží. Lokalita disponuje kompletní občanskou vybaveností v pěší dostupnosti a výbornou dopravní dostupností – do Prahy se vlakem dostanete přibližně za 40 minut, do Mladé Boleslavi za 30 minut. Další informace: Součástí bytu není kuchyňská linka, tu je možné realizovat individuálně dle vlastních představ. V případě zájmu jsme schopni zajistit řešení ve spolupráci s kuchyňským studiem Gorenje. Parkování: Možnost zakoupení parkovacího stání za cenu 450 000 Kč (není zahrnuto v ceně bytu). Více informací o projektu naleznete na webu Rezidence Tyršovka. Rádi Vám projekt osobně představíme a zodpovíme veškeré dotazy – neváhejte si s námi domluvit osobní setkání.


