Prodej bytu, atypický, 90 m²
Prodej bytu 1+kk, 88 m2, Nupaky
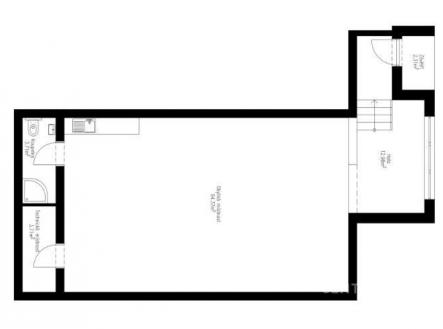
VÝRAZNÁ SLEVA! Původní cena 5.967.360, Kč snížena na novou cenu 5.370.624, Kč. Exkluzivně naše realitní kancelář Century 21 Harmony nabízí ke koupi atypický a architektonicky zajímavý byt (původně ateliér) s dispozicí 1 + kk o celkové výměře 88 m2 v rezidenci u Věže v Nupakách, okres Prahavýchod. Tento by je vhodný pro zájemce, který ocení velkou užitnou plochu bez příček a po menších úpravách je vhodný i pro zdravotně hendikepované osoby s asistenčním pejskem. Byt je umístěn v 1. PP bytového domu na adrese ul. K Parku, Nupaky. Jedná se o unikátní prostor, který je dispozičně velice zajímavě řešen, kdy do bytu vstoupíte chodbou, s přímým vstupem do zimní slunné zahrady, která navazuje na velkorysý prostor o výměře 66,3 m2, jehož součástí je kuchyňský kout, kde je kompletní příprava pro kuchyňskou linku. Součástí bytu je dále praktická technická místnost o výměře 5,4 m2 a koupelna o výměře 5,4 m2 se sprchovým koutem, umyvadlem a WC. Před vchodem do bytu je krytý prostor (závětří). Provedení je ve standardu, byt má plastová okna, vytápění je ústřední plynové, kotelna je v objektu. Jedná se o ojedinělou příležitost k bydlení, a to díky unikátnímu prostoru o výměře 66,3 m2, který nabízí řadu variant, jak si architektonicky tento prostor zařídit tak, aby odpovídal Vašim bytovým potřebám. Tento atypický byt Vám poskytne nejen příjemné a prostorné bydlení, ale i možnost zajímavé investiční příležitosti v místě s vysokou poptávkou po bydlení. Bonusem pro nového majitele je možnost zakoupení krytého parkovacího stání za sníženou cenu 350.000, Kč, které se nachází přímo v areálu této rezidence. Bydlení v obci Nupaky poskytuje ideální kombinaci vesnické atmosféry s rychlou dostupností do Prahy, a to jak autem po D 1, tak přímé spojení MHD na metro Opatov, kde jste za 10 min. Nupaky jsou moderní obec obklopená zelení s polohou nedaleko Říčan. V obci Nupaky se nachází MŚ, která je kousek od Rezidence, obchod s potravinami je přímo v obci. Veškerá občanská vybavenost je v Čestlicích v docházkové vzdálenosti, kam můžete vyrazit za kulturou, stejně tak, jako do Průhonického parku. Jedná se o jeden z posledních původních ateliérů (celkem 5), který je v nabídce naší realitní kanceláře. Srdečně Vás zvu na prohlídku a neváhejte mě proto kdykoliv kontaktovat.


