Prodej bytu, 2+kk, 61 m²
Exkluzivně nabízíme prodej bytu 2+kk , 60,66m2 s terasou a předzahrádkou v Nučicích u Rudné
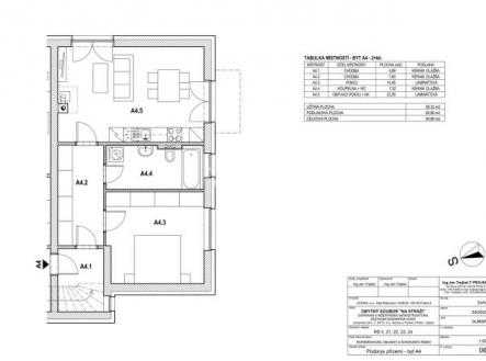
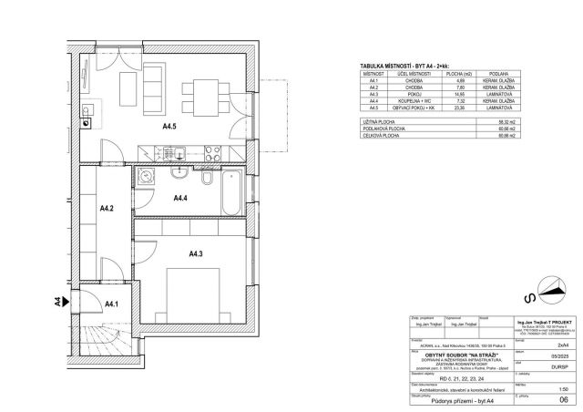
Exkluzivně nabízíme prodej bytu 2+kk, 60,66m2 v krásné lokalitě u lesa, ul. Na Stráži, Nučice u Rudné, v nově rostoucí rezidenční lokalitě "Na Stráži". Tento přízemní byt 2+kk, 60,66m2 s vlastní předzahrádkou cca 150m2 a vyhrazeným parkováním před domem svou velkorysou dispozicí nabízí světlý obývací pokoj s kuchyňským koutem o velikosti 23,36m2, ložnici 14,95m2, koupelna s WC 7,32m2, a ostatním zázemím. Dokončení 4Q/2026. Dům ve kterém se bytová jednotka nachází je v krásné lokalitě Na Stráži, Nučice, je to nově vznikající rezidenční čtvrt s vlastním zázemím, s převažující zástavbou rodinnými domy, kde je kladený velký důraz na komfort a klidné bydlení u lesa. Nučice u Rudné (Praha – západ) se díky své poloze se staly velice žádanou lokalitou, a to nejen pro svou výbornou dopravní dostupnost, ale také bohatou občanskou vybavenost. Nučice a nedaleké město Rudná nabízejí bydlení v krásné přírodě, přesto však s veškerým komfortem a splněnými požadavky na aktivní život v této moderní době. Najdete zde mateřskou a základní školu, zdravotní středisko, zubní ordinaci, sportovní centra (moderní jízdárnu, kuželková dráha, areál pro frisbee, dva fotbalové stadiony, squash, tenis, plážový volejbal, minigolf, fitness, solárium, masáže atd.), poštu, obchody, restaurace a mnoho dalších služeb. Nučice jsou zároveň vstupní branou do kouzelných lesů Berounska, které lákají k vyjížďkám na kole po okolních cyklostezkách, nebo na rodinné výlety a pěší turistiku po krásných okolních místech jako je např. přírodní park Povodí Kačáku. Nedaleko se nachází i zatopený lom Amerika, hrad Karlštejn nebo romantické údolí řeky Berounky. Nučice a jejich okolí je místem jako stvořeným pro klidné bydlení, tak i výchovu Vašich dětí, nebo sport či relaxaci. K velkým nákupům můžete z Nučic vyrazit do blízkého komplexu, kterým je obchodní a zábavní centrum Zličín.Doporučuji prohlídku vzorového domu, kde Vám rádi poskytneme veškeré další informace a možnosti.


