Prodej - dům/vila, 230 m²
Prodej rozestavěného RD 5+kk, zast. pl. 99m², pozemek 359 m², obec Nový Vestec
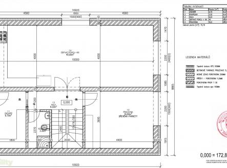
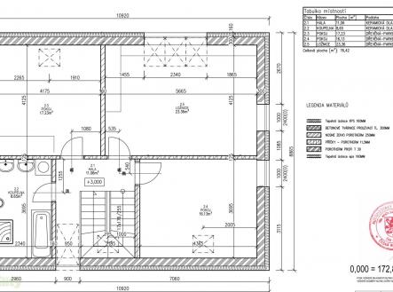
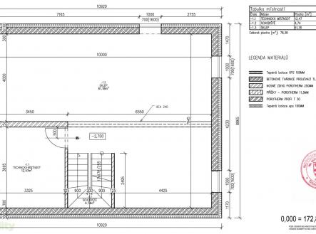
Nabízíme k prodeji rozestavěný rodinný dům 5+kk s obytnou plochou 152 m², zastavěnou plochou 99 m² a celkovou výměrou pozemku 359 m². Nemovitost se nachází v klidné lokalitě v ulici Pod Bažantnicí v obci Nový Vestec. Dům je situován na okraji lesoparku u soutoku Jizery a Labe, v malebném a klidném prostředí ideálním pro rodinné bydlení, procházky i odpočinek v přírodě. Současně nabízí výbornou dopravní dostupnost – do Prahy, Brandýsa nad Labem i Staré Boleslavi se pohodlně dostanete během několika minut, k metru Černý Most zhruba za 17 minut jízdy. Pozemek je kompletně zasíťovaný – k dispozici je napojení na elektřinu, veřejný vodovod, kanalizaci i plynovod. Je oplocený a přístupný z veřejné komunikace. Dům má platné stavební povolení a kompletní projektovou dokumentaci. Je plně podsklepený, obvodové zdivo je z tvárnic Ytong o tloušťce 30 cm a počítá se se zateplením 18cm. Střešní krytinu tvoří pálené betonové tašky KMB Beta Elegant (v ceně stavby, dosud nepoložené, realizace proběhne v následujících týdnech), střešní okna jsou zn. Roto. V současné době probíhají terénní úpravy pozemku. Dům je připraven k dokončení podle představ nového majitele, přičemž je možné zajistit dokončení stavby prověřenou stavební firmou. Dispozice domu: 1.PP: Sklep 61m², technická místnost 12,5m². 1.NP: Zádveří 6,8m², vstupní chodba 9,2m², koupelna se sprchovým koutem a WC 3,3m², ložnice 16,5m², obývací pokoj se vstupem do zahrady a kuchyňský kout 40m². 2.NP: Chodba 11m², tři ložnice 23,3m², 17,2m² 16,1m², koupelna s vanou a WC 8,6m². Obec leží v malebné krajině Polabí, obklopená přírodou a množstvím rekreačních možností. V blízkosti se nachází koupací jezero u Káraného, slatinné lázně Toušeň, lesopark Houšťka se sportovišti či přírodní památka Černý orel – pozůstatek někdejších královských lesů. Občanská vybavenost obce zajišťuje veškeré základní potřeby pro pohodlné bydlení. V docházkové vzdálenosti je obchod s potravinami a autobusová zastávka. Kompletní infrastrukturu – školy, zdravotní péči i sportovní zařízení – nabízí nedaleký Brandýs nad Labem – Stará Boleslav. Možnost financování hypotečním úvěrem.

