Prodej - jiné, 79 m²
Prodej nebytového prostoru-ateliéru.
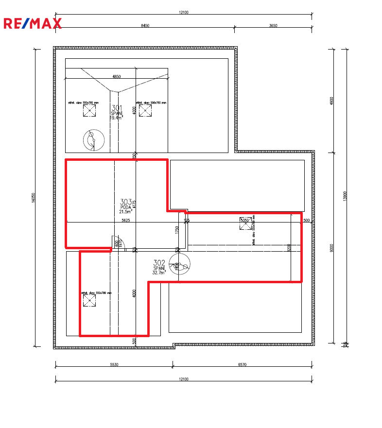
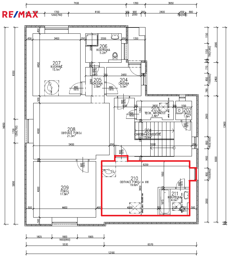
Malý prostor. Velký nápad. A překvapivě hodně možností. Do prodeje míří ateliér ve 2. a 3. nadzemním podlaží domu v Novém Malíně. Ideální volba pro někoho, kdo hledá vlastní zázemí, pracovní prostor, startovací řešení nebo investici s potenciálem. Samotné prostory jsou nové a dům prošel celkovou revitalizací, což je znát jak na technickém stavu, tak na celkovém dojmu z nemovitosti. Ve 2. NP je řešen hlavní obytný prostor – obývací pokoj s kuchyňským koutem o výměře 19,56 m² a koupelna 3,98 m². Kuchyňský kout je vybaven elektrickou varnou deskou, zabudovanou digestoří a umývadlem. V koupelně je vana, keramické umyvadlo a toaleta. Ohřev vody zajišťuje vlastní elektrický bojler a vytápění plynový kotel pro 2. NP, v prostoru je jeden radiátor a podlahové topení pod dlažbou v kuchyni a koupelně. Do 3. NP vede menší kruhové schodiště, které ústí do otevřeného prostoru určeného pro spaní o výměře 32,65 m². Tento prostor zatím není vytápěn a hned vedle něj se nachází další půdní část o výměře 21,48 m², kterou lze využít například jako sklad nebo další zázemí. Celek působí vzdušně a nabízí překvapivě variabilní využití podle potřeb nového majitele. K užívání je také sklep v 1. PP a úklidová místnost v mezipatře o výměře 1,55 m². Velkým benefitem je i samotná lokalita – v docházkové vzdálenosti je škola, školka, obchod i obecní úřad a zároveň je zde velmi dobré autobusové i vlakové spojení se Šumperkem. Jen férové upozornění: prostor je vedený jako nebytový prostor – ateliér.V praxi ale nabízí komfort zázemí, které dnes spousta lidí hledá – ať už pro vlastní potřebu, práci nebo jako investici. Tuto nemovitost lze financovat hypotéčním úvěrem, se kterým Vám rádi pomůžeme. Pokud vás baví chytrá řešení, menší prostory bez zbytečností a nemovitosti s nápadem, tohle stojí za pozornost. Prodávající si vyhrazuje právo vybrat kupujícího na základě jím zvolených kritérií.


