Prodej - dům/vila, 196 m²
Prodej secesního domu v Novém Jičíně
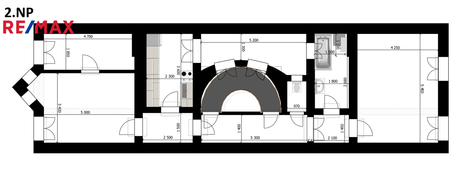
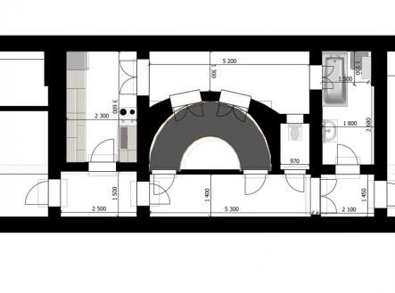
Nabízíme k prodeji secesní stavbu rodinného domu, která se nachází v centru Nového Jičína. Dům na první pohled zaujme svou fasádou, která je plná dekorativních prvků, štukových ornamentů, šambrán a jiných secesních prvků. Dům byl postaven na začátku 20.st. a skládá se ze tří obytných podlaží. Celková plocha je 196m2 + sklepní a půdní prostory. Dům je možné využít na bydlení nebo podnikání. Investičně je možné zde vybudovat 3 bytové jednotky a v přízemí využít komerční prostor se vstupem a okny do hlavní ulice. Uprostřed domu je světlík, který dodává dostatek denního světla do velké části vnitřních prostor. Dům je napojen na elektřinu, plyn, vodovod i kanalizaci. Celkový stav nemovitosti je před rekonstrukcí. Výměra pozemků je 269m2 z čehož 127m2 je zastavěná plocha a 142m2 okolní pozemek. Zahrada za domem je příjemně krytá okolními stavbami. Je zde několik ovocných stromů a keřů, dvorek s posezením a stavba původní prádelny. Pro více informací nebo domluvení prohlídky mne neváhejte kontaktovat.


