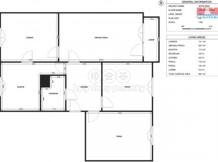
Prodej bytu, 4+1, 89 m²
Prodej bytu 4+1, 89 m², Nová Paka, ul. K Hájku
Nabízíme vám prostorný byt 4+1 v zajímavé části Nové Paky. Byt se nachází v klidné lokalitě s krásným výhledem do zeleně. Už při prvním pohledu ucítíte, že tady se bydlí opravdu pohodově. Částečná rekonstrukce vám ušetří čas i náklady, zároveň ale nabízí možnost doladit si domov přesně podle sebe. Praktickou výhodou je i sklep, který ocení každý. Okolí domu potěší nejen svou zelení, ale hlavně skvělou občanskou vybaveností. Všechno důležité máte nablízku – školy, školky, obchody i zdravotní péči. A pokud patříte mezi milovníky zimy, budete tu jako doma. V zimních měsících si můžete užít lyžování, běžky nebo výlety do blízkého okolí, které je pro sport jako stvořené. Byt v Nové Pace je ideální volbou pro ty, kteří chtějí žít v klidném prostředí, ale zároveň mít všechno po ruce. Rádi vám ho osobně představíme. Stačí se ozvat.


