Prodej - dům/vila, 184 m²
Prodej Rodinný dům, 184㎡
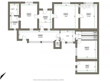
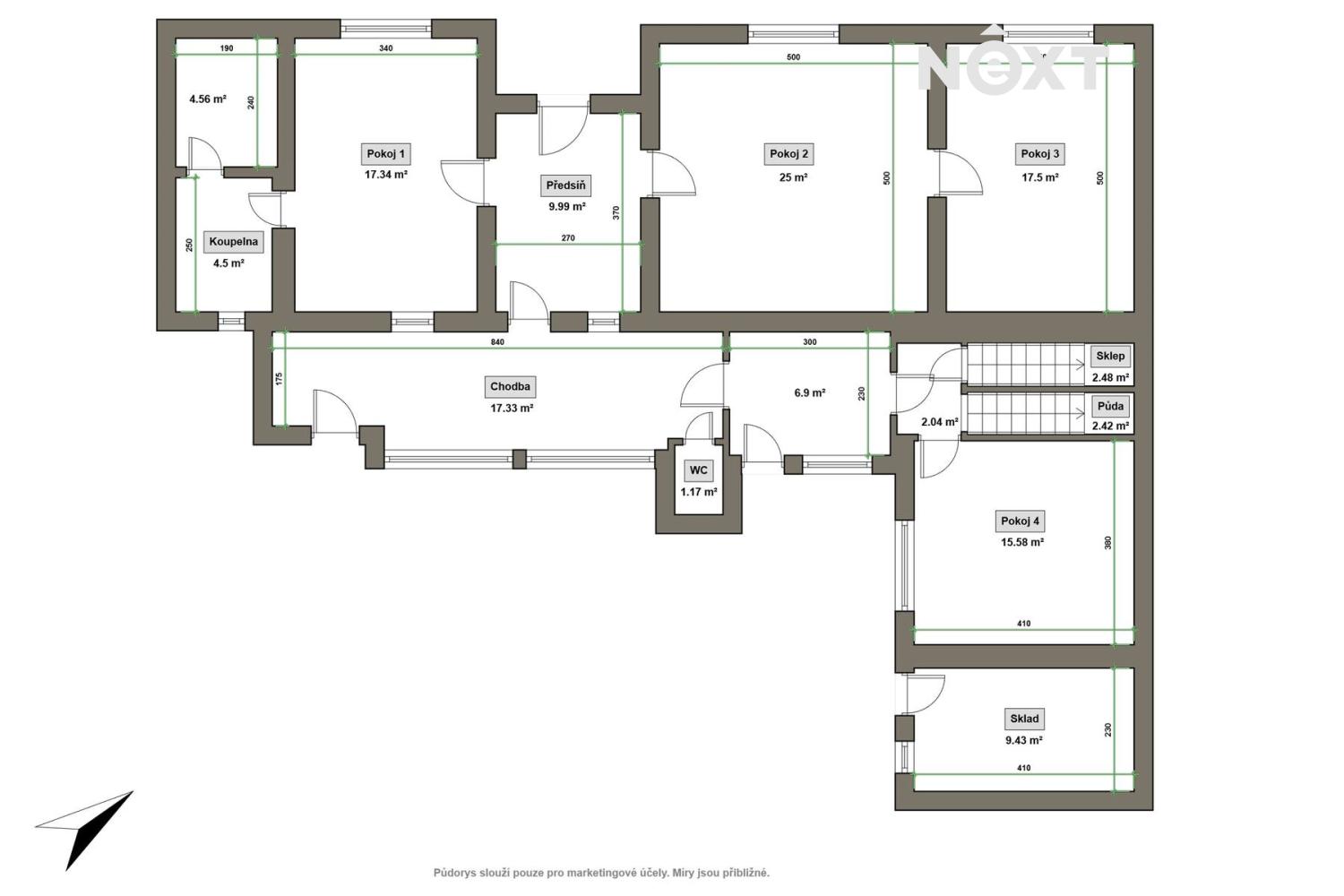
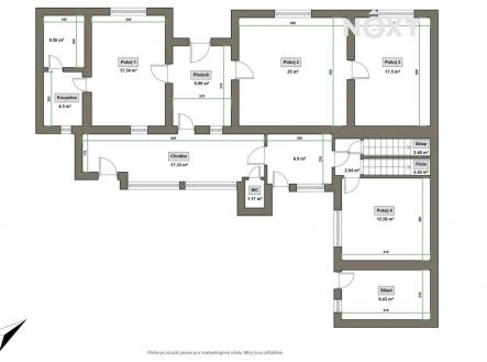
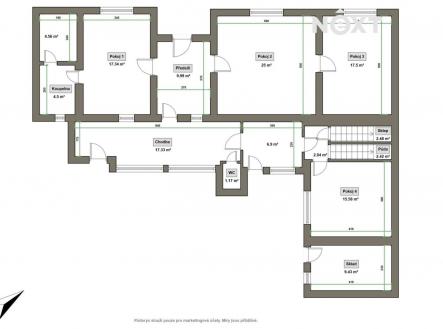
Hledáte klidné bydlení na venkově s velkým pozemkem a širokými možnostmi využití? Nabízíme k prodeji starší jednopodlažní rodinný dům o dispozici 4+1 v obci Nezdenice. Který je určen k rekonstrukci podle vašich představ. Součástí domu jsou také hospodářské prostory, předzahrádka, rozlehlé humno se sadem s velkým množstvím ovocných stromů, dvě verandy, sklep a velká půda, která nabízí možnost rozšíření obytné části. Dům má plastová okna, samostatné WC, spíž a prostornou předsíň s prádelnou. Venkovní část disponuje kůlnou na nářadí a skleníkem. Na dům se dají čerpat dotace "Oprav dům po babičce" až 1 míl kč a další dotace na opravu do cca 500 tis kč - jsme schopni pomoct s vyřízením dotace. Dispozice a vybavení domu: V domě najdete 4 pokoje, samostatnou kuchyň, koupelnu se sprchovým koutem, dále pak dvě verandy s možností relaxace nebo úložného prostoru. Sklep, velká půda a hospodářské prostory poskytují dostatek místa aktivity všeho druhu. Vnitřní dvůr se skleníkem a krbem. Garáž pro jedno auto, vjezd a dvě parkovací místa před domem Dům je napojen na septik, rozvod pitné vody, ohřev vody zajištěn bojlerem v koupelně, topení vlastním plynovým kotlem. Vlastní zdroj užitkové vody na zalévání. Humno se sadem je ideální pro pěstování, chov a rekreaci. Dům se dá přestavět na 2 až 4 bytové jednotky. A tím využít potenciál daného místa. Lokalita – klidné bydlení s občanskou vybaveností a skvělou dostupností. Dům se nachází v malebné obci Nezdenice, ležící v chráněné krajinné oblasti Bílých Karpat, nedaleko města Uherský Brod. Obec nabízí veškerou základní občanskou vybavenost, včetně: mateřské a základní školy, obchodu s potravinami, autobusového a vlakového spojení, sportovního střediska – možnost aktivního vyžití, možností volnočasového vyžití – sportoviště, cyklostezky, venkovní koupaliště, příroda. Tento dům je ideální pro trvalé bydlení i rekreační využití. Nabízí dostatek prostoru, soukromí a možnosti přizpůsobení dle vašich představ. Pokud vás tato nemovitost zaujala, neváhejte mě kontaktovat pro více informací nebo domluvení osobní prohlídky. Uvedená cena je včetně provize právního servisu a dalších poplatků. Pro komunikaci uvádějte evidenční číslo zakázky N115269.


