Prodej - dům/vila, 207 m²
Prodej Rodinný dům, 207㎡
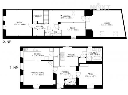
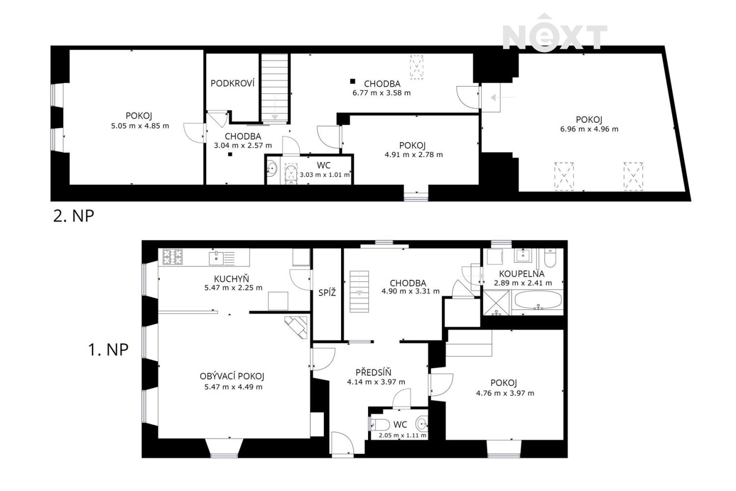
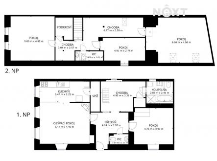
Prodej chalupy / rodinného domu ve vesnici Nevězice, která se nachází na levém břehu Vltavy, přibližné 1km od vodní nádrže Orlík. Původní statek, postavený v roce 1855, prošel nedávnou rekonstrukcí, čímž kombinuje historii s moderním pohodlím. Chalupa disponuje celkem čtyřmi ložnicemi, což poskytuje dostatek prostoru pro rodinu či hosty. Obývací pokoj je spojen s kuchyní, čímž vytvářející centrum domova ideálního pro rodinná setkání a společné chvíle strávené při večeřích a dalších společných aktivitách. Součástí chalupy je i prostorná maštal (40m2) s možností předělání na dílnu nebo jako rozšíření obytných prostor chalupy. Na pozemku jsou také dvě kamenné stodoly v původním stavu ( 122 m2 a 65 m2), které nabízí různé možnosti využití – od úložného prostoru, posezení, dílny, garáže, sklad pro loď, až po prostor pro zbudování dalších obytných částí. Rozsáhlý pozemek o celkové rozloze 1241 m2 dodává této nemovitosti určitého kouzla a možnosti pro venkovní aktivity, jako je zahradničení, odpočinek na zahradě nebo grilování s přáteli a rodinou. Celková užitná plocha chalupy činí 207 m2, což zajišťuje dostatek prostoru pro pohodlné bydlení. K tomu je k dispozici i sklep (15m2), který poskytuje další úložný prostor a je ideální pro uskladnění potravin nebo jiných domácích potřeb. Vytápění chalupy je zajištěno elektrickými přímotopy, krbovými kamny a kuchyňskými kamny na tuhá paliva. Nově vyvložkovaný komín umožňuje připojení kotle pro ústřední topení. Chalupa je napojena na vlastní studnu. Ohřev vody je zajištěn pomocí elektrického bojleru a průtokového ohřívače. Odpadní vody jsou svedeny do jímky s přepadem. Nevězice se nachází pouhých 8km od nově vybudované dálnice D4 – pouhých 45 minut do Prahy a 20 minut od Písku. V Nevězicích jsou obecní úřad, knihovna, restaurace, autobusová zastávka (32minut Písek) a potraviny. Pro komunikaci uvádějte evidenční číslo zakázky N104104.


