Prodej - dům/vila, 152 m²
Rodinný dům u Labe – Mlékojedy u Neratovic
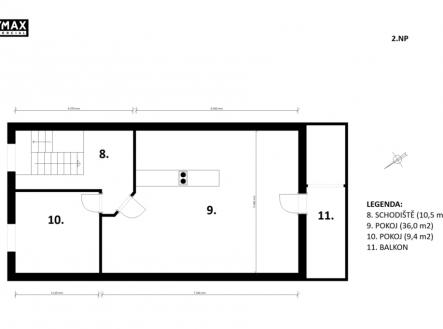
Dvoupodlažní rodinný dům o podlahové ploše 152 m² stojí na pozemku o výměře 264 m² v obci Mlékojedy, přímo u řeky Labe a na konci klidné slepé ulice, na kterou navazuje cyklostezka. Dům je určen k celkové rekonstrukci. Hlavní přednosti nemovitosti: • Klidné umístění u Labe – dům se nachází na konci slepé ulice s minimálním provozem, pár kroků od cyklostezky a hned u Labe. V okolí je spousta zeleně a nic vás tu nebude rušit. • Skvělá dostupnost za prací do Prahy a Mělníka – autem jste v Mělníku za 15 minut, v Brandýse nad Labem za 20 minut a v Praze–Letňanech do půl hodiny. • Dům je prázdný a připravený k rekonstrukci – můžete začít ihned a upravit si dispozici i styl domu přesně podle svých představ. Dispozice a popis domu: V přízemí se nachází vstupní předsíň, centrální obytná místnost s kuchyňským koutem, krbem a schodištěm do podkroví. Dále jsou zde tři samostatné pokoje a boční vchod. Kuchyň je orientována do zahrady na jihovýchod, obytné místnosti do ulice na severozápad. V podkroví se nachází chodba, dva pokoje a balkon. Technické a stavební informace: Dům je zděný, postavený z cihel a tvárnic, se stropy z dřevěných trámů. Střecha je sedlová s plechovou krytinou. Konstrukce odpovídá době výstavby a vyžaduje kompletní rekonstrukci. Úpravy byly již částečně zahájeny, například výměnou oken za plastová. Objekt je napojen na elektřinu, vodovod a kanalizaci. Vytápění v současnosti zajišťuje krb v centrální místnosti. Lokalita: Mlékojedy jsou menší, klidná obec přímo u řeky Labe, která navazuje na Tišice. V obci se nachází obchod, mateřská škola a pivnice. Jen pár minut odtud leží pískovna Tišice – oblíbené místo pro koupání, paddleboarding a relaxaci. Okolí je ideální pro cyklistiku, běh i procházky podél řeky. Do okolních měst i do Prahy dojedete pohodlně autem do 30 minut. Do Neratovic, kde je vlakové nádraží, lze dojít pěšky (cca 1,5 km). Závěr: Další informace Vám makléř rád poskytne telefonicky nebo při osobní prohlídce.

