Prodej - dům/vila, 198 m²
Prodej dům Rodinný, 198㎡|Středočeský kraj, Kutná Hora, Nepoměřice, 19, 28511
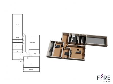
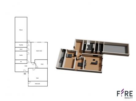
Nabízíme k prodeji rodinný dům v obci Nepoměřice. Nemovitost je určena k rekonstrukci, poskytuje skvělou příležitost pro vlastní realizaci a úpravu podle individuálních představ a přání. Dům v klidné obci o celkové užitné ploše 198 m² včetně půdy. V přízemí naleznete pokoj, kuchyni s jídelnou, obývací pokoj, pokoj, WC a koupelnu. Dům je z malé části podsklepen, součástí domu je i zahrada. Nemovitost je připojena na veřejný vodovod, odpad je řešen pomocí jímky. Jedná se o zděný dům s pozemkem o CP 270 m², umístěný v srdci obce s naprosto klidným prostředím. Domov pro ty, kteří hledají místo pro nový začátek či investiční příležitost k vytvoření nového domova. V případě zájmu zajistíme investiční úvěr.


