Pronájem bytu, 2+kk, 50 m²
Pronájem pěkného bytu se zahrádkou 2+kk, Nemojany 308, - 16.000,- Kč/měs, 50 m2
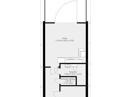
Nabízíme dlouhodobý pronájem pěkného bytu se zahradou o dispozici 2+kk v klidné lokalitě na Nemojanech 308 v Nemojanech. Byt o celkové ploše 50m2 + 30m2 zahrádka s terasou. Jedná se o nezařízený byt. V kuchyni naleznete kuchyňskou linku s varnou deskou, troubou, myčkou nádobí a lednicí. V přední části se nachází vstup na terasu a zahradu. Dále se zde nachází samostatný pokoj. Pokoj je nevybavený. V koupelně se nachází sprchový kout, umyvadlo, zrcadlo a WC. V bytě jsou vinylové podlahy a dlažba. Vytápění zajišťuje vytápění s radiátory. Poplatky za služby činí 4.000,- Kč (topení, voda a teplá voda, elektřina). Byt je volný k nastěhování ihned. Vratná jistota je ve výši 20.000,- Kč Lokalita je klidná, vhodná pro ty, kdo hledají bydlení mimo rušné centrum, s dobrým napojením na okolní obce. Byt je volný k nastěhování ihned.


