Prodej - dům/vila, 135 m²
Prodej rodinného domu 135 m2 s pozemkem 1127 m2 v Nechanicích
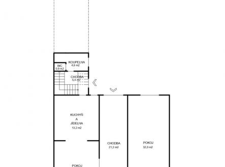
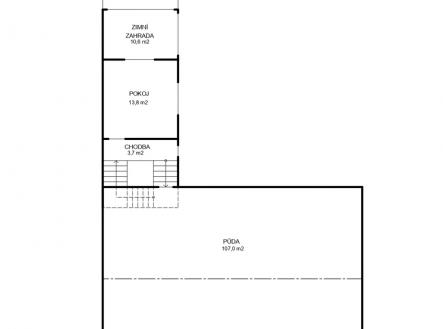
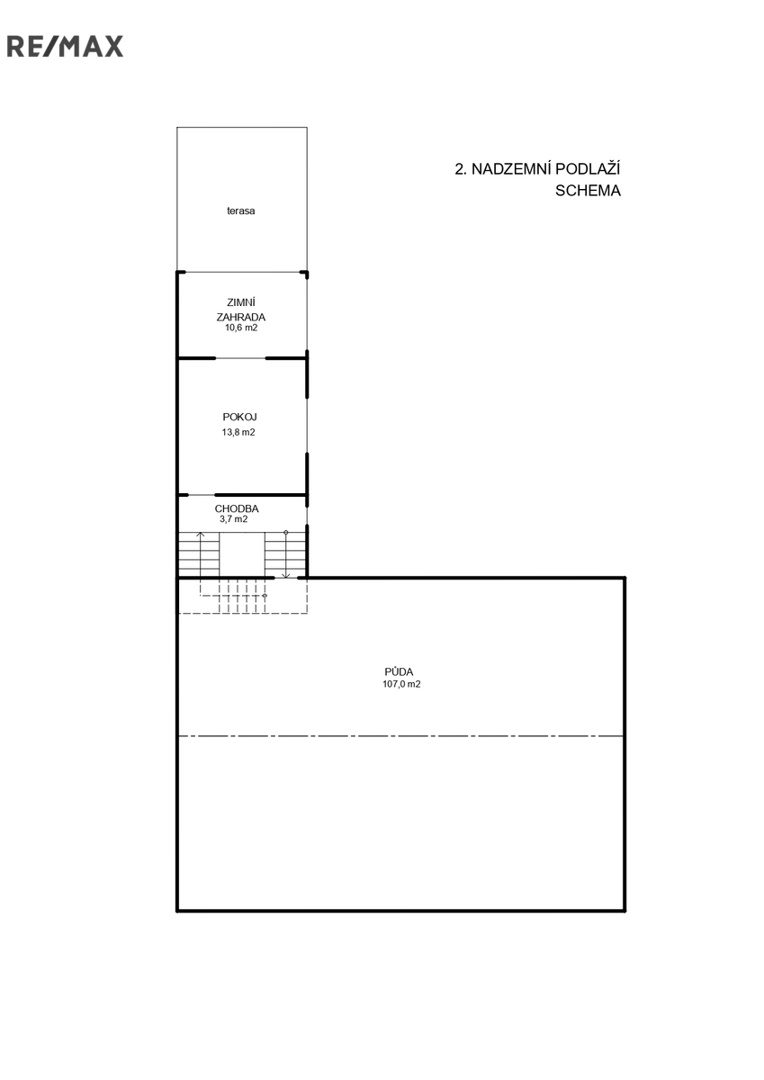
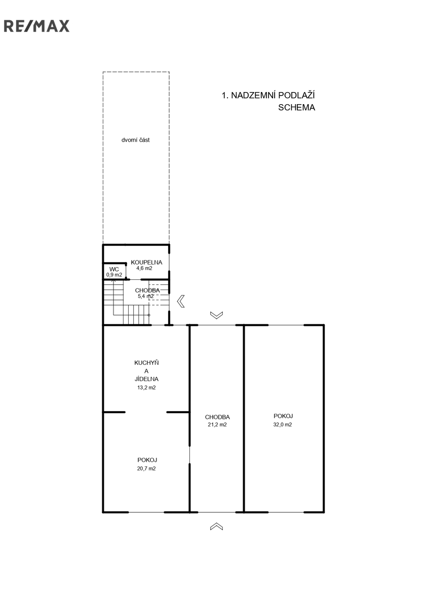
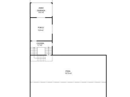
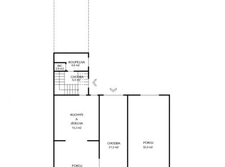
Hledáte rodinný dům se zahradou, kde si postupně vytvoříte domov přesně podle svých představ? Právě jeden takový pro vás máme v Nechanicích. Tento rodinný dům stojí v klidné části obce na krásném, prostorném pozemku o velikosti 1 127 m² a nabízí dostatek prostoru pro rodinný život, zahradu i vaše koníčky. Velkou výhodou je také přístup na zahradu nejen od domu, ale i z vedlejšího obecního pozemku, což oceníte například při údržbě zahrady, parkování nebo plánování budoucích úprav. Kromě samotného domu zde najdete také garáž, dílnu a menší zahradní domek, takže místa je tu opravdu dost – ať už pro práci, odpočinek nebo uskladnění všeho potřebného. Dalším benefitem je, že v domě lze ihned normálně bydlet a případnou rekonstrukci řešit postupně, podle vašich možností a představ. Nemusíte tedy vše řešit najednou – dům si můžete upravovat krok za krokem a přizpůsobovat ho přesně svému stylu a potřebám. Velký potenciál nabízí také půdní prostor o výměře přibližně 107 m², který přímo vybízí k půdní vestavbě. Díky tomu může dům výrazně zvětšit obytnou plochu a přizpůsobit se i vícegeneračnímu bydlení. Nemovitost tak může být nejen skvělým rodinným domovem, ale také zajímavou investiční příležitostí. Dispozice i velikost domu umožňují uvažovat o vybudování více bytových jednotek – například pro pronájem nebo kombinaci vlastního bydlení a investice. Nechanice nabízí kompletní občanskou vybavenost – najdete zde školu, školku, lékaře, obchody, restaurace i další služby pro pohodlný každodenní život. Do Hradce Králové se navíc dostanete během pár minut autem nebo autobusem, takže máte město na dosah a přitom klidné bydlení mimo jeho ruch. Pokud budete potřebovat pomoc s financováním koupě i následných úprav, rádi vám zajistíme výhodné řešení na míru. Zaujala vás představa domu, který nabízí prostor, klid a velký potenciál? Ozvěte se a domluvme si osobní prohlídku. Rád vám dům ukážu. Prodávající si vyhrazuje právo vybrat kupujícího na základě jím zvolených kritérií.


