Prodej - dům/vila, 118 m²
Nízkoenergetický rodinný dům 4+kk s pozemkem 445 m² v klidné části Narysova
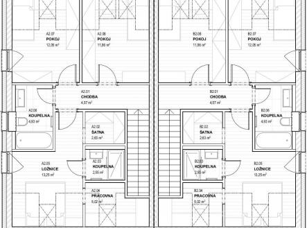
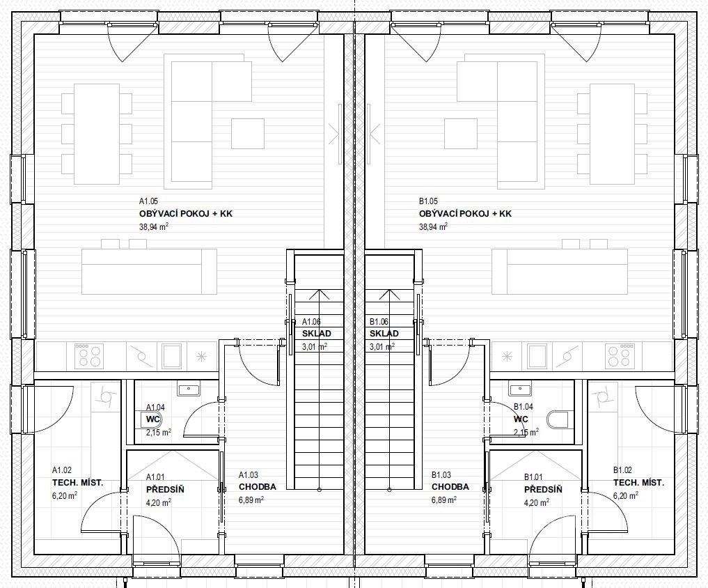
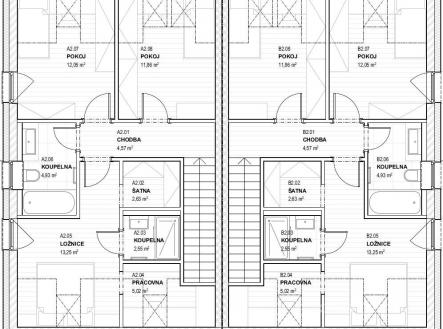
Moderní nízkoenergetický dům 4+kk se zahradou a pracovnou, v klidné lokalitě u Příbrami V projektu Zelená Narysov nabízíme k prodeji novostavbu prostorného rodinného domu 4+kk o podlahové ploše 124,49 m² s pozemkem o velikosti 445 m². Jednotka je součástí moderního dvojdomu, ve kterém má každá bytová jednotka vlastní vstup, soukromou oplocenou zahradu a dvě parkovací místa na zpevněné ploše. Dům je navržen v nízkoenergetickém standardu, který kombinuje vysoký komfort a dlouhodobou úsporu provozních nákladů. Součástí ceny je tepelné čerpadlo vzduch–voda napojené na podlahové vytápění, fotovoltaický systém, plastová okna s trojsklem a venkovními roletami, dokončené koupelny, finální podlahy, interiérové dveře, oplocení a parkování na vlastním pozemku. Dispozice domu je navržena s důrazem na praktické členění a rodinné fungování – vzdušný obývací pokoj s kuchyňským koutem má přímý vstup na terasu a zahradu. Dále jsou zde tři ložnice, samostatná toaleta, koupelna s vanou a technická místnost. Velká hlavní ložnice nabízí příjemný bonus v podobě vlastní koupelny se sprchovým koutem, šatny a oddělené pracovny – ideální kombinace pro pohodlné soukromí i home office. Součástí projektu je možnost dokončení domu na klíč přesně dle vašich představ, včetně kuchyňské linky, vestavěného nábytku nebo terasy. Zelená Narysov je moderní rezidenční projekt situovaný v malebném prostředí nedaleko brdských lesů. Klidná atmosféra menší obce se zde přirozeně doplňuje s výbornou dostupností do Příbrami i Prahy. Lokalita se postupně rozvíjí – v budoucnu zde vznikne školka, dětské hřiště i nabíjecí stanice pro elektromobily, což dále zvyšuje kvalitu života v místě a přirozenou hodnotu vaší nemovitosti. Tento dům je ideální volbou pro rodinu, která hledá moderní a úsporné bydlení s dostatkem prostoru, soukromí a přírody. Rádi vás provedeme osobně. Kontaktujte nás pro více informací nebo domluvení prohlídky.


