Pronájem bytu, 2+1, 64 m²
Pronájem bytu 2+1 64 m2
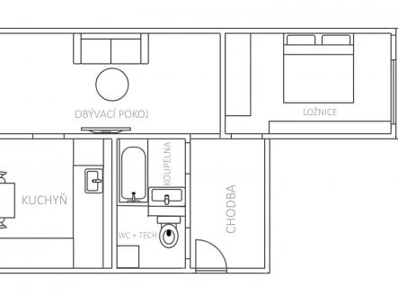
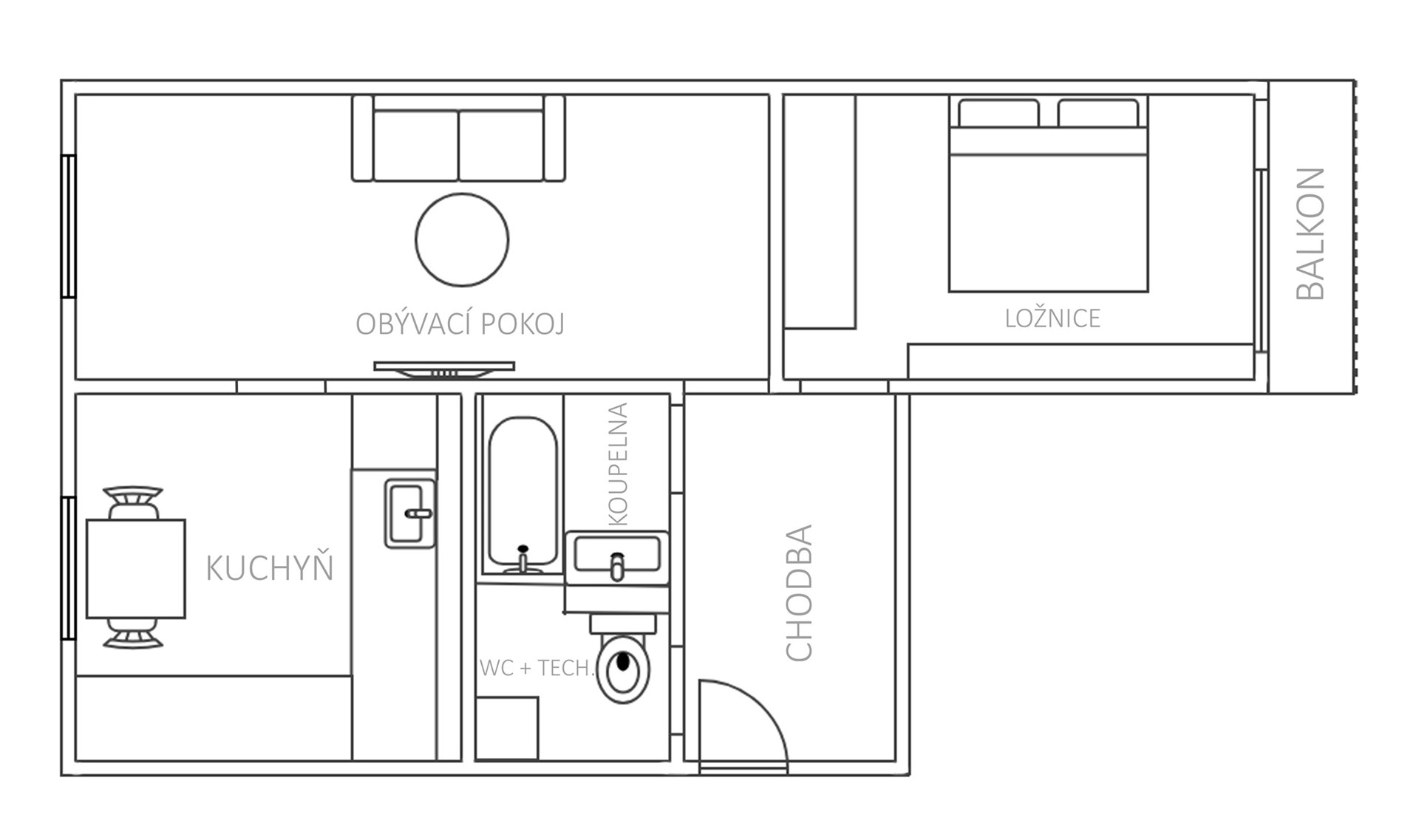
Ve výhradním zastoupení nabízím k dlouhodobému pronájmu prostorný a světlý družstevní byt 2+1 o rozloze 64 m². Byt se nachází v 7. patře udržovaného panelového domu v žádané a klidné lokalitě na adrese Marš. Rybalka 1033 v Mostě. Byt prošel rekonstrukcí, je čerstvě vymalován a připraven pro první nájemníky, kteří ocení čistotu a moderní standard bydlení. Hlavní přednosti bytu: Krásná nová koupelna: moderní obklady, vana a stylové retro baterie. Prostorná kuchyně: kuchyňská linka v dekoru dřeva vybavená spotřebiči (lednice, myčka, sporák, trouba) a místem pro jídelní kout. Velkorysé pokoje: obývací pokoj s novými podlahami a ložnice s velkou vestavěnou skříní a komodou. Pro lepší představu o dispozici přikládám vizualizace možného uspořádání nábytku. Balkon s výhledem: výhled do zeleně, který zajišťuje soukromí a klid. Úložné prostory: na chodbě jsou již k dispozici praktické komody a zrcadlo. Lokalita a dům: Dům má nový, čistý výtah a velmi slušné sousedy. V docházkové vzdálenosti najdete veškerou občanskou vybavenost (školy, školky, obchody) i možnosti pro procházky v zeleni. Parkování je možné přímo u domu. Finanční podmínky: Nájemné: 11 000 Kč Zálohy na energie a služby: 2 000 Kč / 1 osoba Vratná kauce: 24 000 Kč Provize RK: 1 nájem + DPH (14 520 Kč) Plyn a elektřina: přepisuje si nový nájemník na sebe Každá další osoba: 600 Kč Aktualizace (12.02.2026) – od 01. 04. 2026 je k bytu k dispozici také vlastní řadová garáž přímo v lokalitě o výměře 25m². Pokud chcete mít auto v bezpečí, v suchu a vyhnout se hledání parkovacího místa, lze ji pronajmout za 2 000 Kč měsíčně. Hledám slušné a pracující nájemníky (nekuřáky, bez domácích mazlíčků), kteří hledají dlouhodobý stabilní domov. Byt je k nastěhování ihned. V případě zájmu o prohlídku mě kontaktujte na telefonním čísle.


