Prodej - dům/vila, 400 m²
Prodej usedlosti u Moravské Třebové
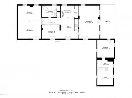
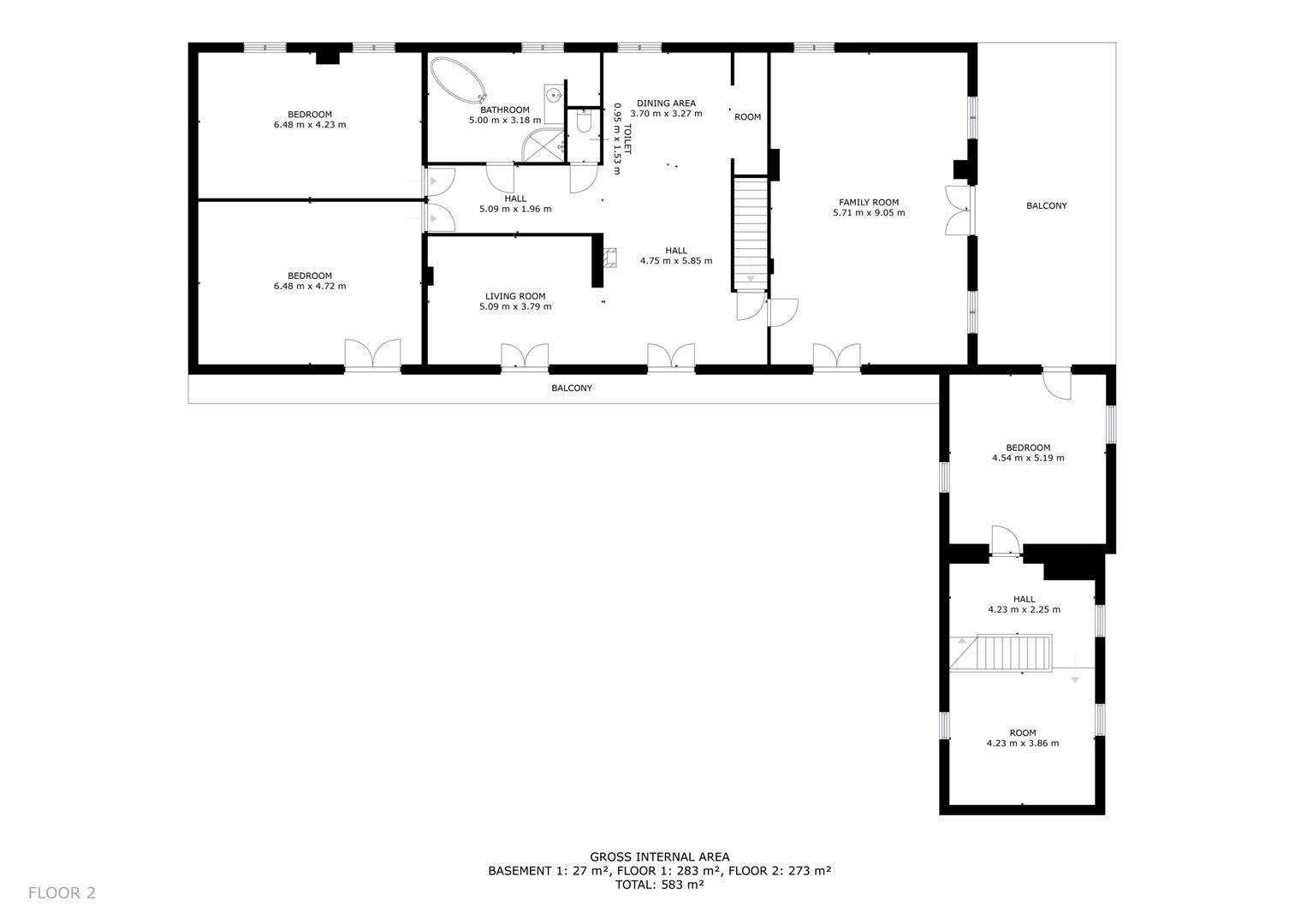
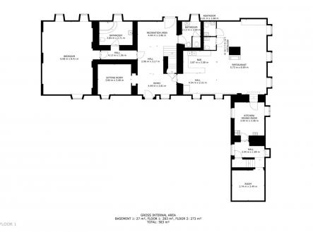
V blízkosti města Moravská Třebová nabízíme k prodeji exklusivní nemovitost ve stylu staré zemanské tvrze, při modernizaci citlivě udrženou v původním duchu zachováním dobových prvků, stylu. V klidném místě stojící patrová precizně rekonstruovaná stavba se zastavěnou plochou asi 260 m2 se rozkládá na pozemcích o celkové výměře 4.300 m2. Komplex se nachází v okrajové části obce, v tichém klidném místě bez provozu, obklopen zelení. Objekt je dobře přístupný, přitom odloučen od dění v obci, soukromí chráněno okolními pozemky. Ve víceúčelovém prostorném domě s úžasnou atmosférou, který po rekonstrukci působící jako šlechtické sídlo, malý zámeček, je veškeré zázemí k využití jak pro rekreační účely, tak i pro trvalé bydlení větší rodiny, společenství. V dispozičně prakticky řešeném dobře prosvětleném domě jsou pokoje ubytovací i velké společenské prostory, v přízemí vše připraveno pro velkou jídelnu, kavárnu, s úpravami využitelnou i jako restauraci. Prostoru pro kavárnu, restauraci, dominuje otevřený renovovaný krb, připravený i na možné vsazení dvouplášťové krbové vložky. Rozložení prostor v domě umožňuje vícegenerační bydlení v několika oddělitelných částech, samostatných bytech. Pro jednotlivé části jsou zbudovány samostatné okruhy ústředního topení s plynovými kotli, v objektu i další krbová kamna pro dotvoření atmosféry i přitápění. Uspořádání vnitřních prostor je patrné z přiložených půdorysů. V průběhu uplynulých let byla provedena kompletní rekonstrukce všech částí objektu, počínaje obnovou přípojek, zbudováním nových rozvodů, instalací, od obnovení a prohloubení sklepení, rozsáhlou renovací podlah, omítek, opravy střechy, až po v současnosti dokončovanou opravu velké venkovní terasy v patře domu. Vše prováděno velmi pečlivě, s využitím nejvhodnějších technologií a materiálů, zároveň citlivě, se zachováním původního vzhledu, dobového stylu. Stávající stavba ve tvaru „L“ má okna do dvora orientována jihozápadně s výhledy do volné přírody, velká zastřešená terasa v patře domu je orientována jihovýchodně. Na pozemku vydatná studna, ve dvoře se dle senzibilů setkávají zóny pozitivních energií. Ve dvoře na půdorysu původně stojících stájí lze dostavět další objekt, zázemí pro dům a zahradu, vytvořit wellness zónu, o tyto prostory možno rozšířit využití komplexu o další ubytovací kapacity, případně zde možno zbudovat garáže apod. V místě původního obezdění dvora jsou dostavovány kamenné zdi, které po dokončení uzavřou dvůr a vytvoří tak dokonalé soukromí. Na vyžádání Vám zašleme podrobné informace s detailním popisem provedených rekonstrukcí. Větší počet fotografií pošleme na vyžádání, případně možno shlédnout na stránkách ERA-reality. Cena nemovitostí 13.790.000,- Kč + provize RK. V případě zájmu o bližší informace či sjednání prohlídky telefonicky kontaktujte makléře.


