Prodej - dům/vila, 204 m²
Prodej rodinného domu 204 m2 Moravany
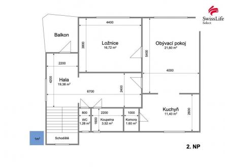
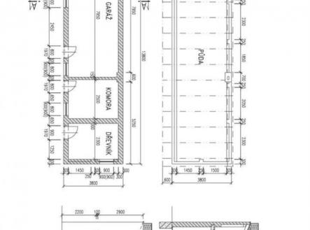
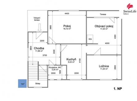
Mám tu pro vás prostorný, dvoupodlažní, částečně podsklepený rodinný dům o vnitřní ploše 204 m v žádané lokalitě nedaleko Pardubic a Chrudimi. Od domu je to 10 minut na dálnici D35 směr Praha. Dům je umístěn v klidné části obce. Nabízí skryté možnosti jak pro rodinné, tak i dvougenerační bydlení. Vhodný je také jako investiční příležitost například pro vybudování dvou bytových jednotek k pronájmu. K domu náleží pozemek o výměře 496 m. Příslušenstvím k domu je garáž a technické zázemí o výměře 50 m. Jedná se o jednu stavbu, kde je možné přestavět nebo zrekonstruovat, například na dílnu či zahradní domek s kuchyní. Na domě v průběhu let proběhly částečné úpravy (zateplení, střecha, výměna oken, kuchyně apod.), nicméně je vhodný k dalším rekonstrukcím a modernizaci. Dům je připojen na inženýrské sítě: elektřina 380 V, plyn, voda, odpady jsou svedeny do místní kanalizace. Na zahradě se nachází studna, která je napůl se sousedy. Obec Moravany je dobře dopravně dostupná do Pardubic i Chrudimi. Přímo do obce zajíždí vlak i autobus. Veškerá občanská vybavenost je zajištěna (mateřská a základní škola, lékař, multifunkční hala).


