Pronájem - obchodní prostor, 147 m²
Pronájem variabilního prostoru 147 m² v Modleticích – vhodné pro kanceláře, showroom i sklad
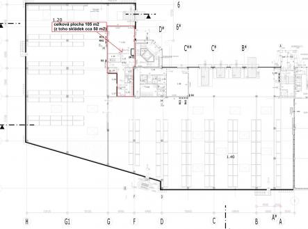
K pronájmu nabízíme reprezentativní prostor o celkové rozloze 147 m² v Modleticích u Prahy, který představuje ideální řešení pro vaše podnikání. Prostor je velmi variabilní a lze jej využít pro různé účely – jako kanceláře, showroom, provoz e-shopu s výdejem zboží a vzorkovou prodejnou, nebo pro lehkou výrobu, kompletaci a balení. Tato nově zrekonstruovaná nemovitost nabízí moderní a praktické zázemí, které ocení jak zaměstnanci, tak i návštěvníci. Prostor se nachází ve druhém patře budovy s výtahem. Dispozici lze upravit dle požadavků nájemce. K dispozici je také možnost pronájmu příručního skladu v přízemí o celkové výměře 105 m², z toho skladová plocha činí přibližně 50 m². Sklad disponuje vlastním sociálním zázemím (kuchyňka a toalety). Objekt je napojen na všechny inženýrské sítě, celý areál je oplocený a monitorovaný kamerovým systémem. Výhodou je možnost parkování na hlídaném parkovišti, což zajišťuje pohodlný přístup pro zaměstnance i klienty. Strategická poloha v Modleticích, přímo u Prahy a u sjezdu z dálnice D1, zaručuje vynikající dopravní dostupnost. Lokalita je ideální pro společnosti, které hledají kvalitní a snadno dostupné prostory pro své podnikání. Pro více informací a sjednání prohlídky nás prosím kontaktujte.


