Prodej - dům/vila, 165 m²
Prodej domu 165 m², pozemek 1.314 m²
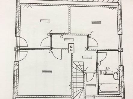
Nabízím k prodeji částečně podsklepený dvoupodlažní rodinný dům o dispozici 5+kk. Dvě koupelny, úklidová místnost, krbová kamna. Dům je možné rozdělit na dvě samostatné bytové jednotky. V roce 2013 prošel kompletní rekonstrukcí. Celková užitná plocha domu činí 165 m². Součástí nemovitosti je zděná zahradní budova o velikosti 25 m², kterou lze využít jako skladovací prostor nebo dílnu. Díky svému umístění nabízí nemovitost výrazný potenciál pro podnikatelské využití. Na zahradě je k dispozici parkování pro dvě osobní vozidla. Tato nemovitost je určena výhradně přímým zájemcům o koupi. Na inzerát můžete také reagovat přímo na webu Bezrealitky: https://www.bezrealitky.cz/nemovitosti-byty-domy/977433-nabidka-prodej-domu-cisovicka-mnisek-pod-brdy


