Prodej - dům/vila, 105 m²
Prodej, Rodinný dům, 105 m² Mnichovice (Říčany)
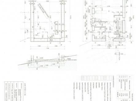
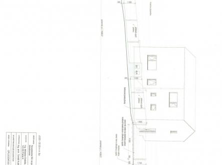
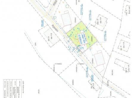
Dovolujeme si Vám nabídnout prodej detailně řešené, velmi kvalitně postavené a mimořádně úsporné novostavby rodinného domu, umístěné v nádherném prostředí v obci Mnichovice u Říčan. Hlavní předností nabízeného domu je moderní design se zaměřením na detail a užitnou hodnotu, použité nadstandardní materiály stavebních konstrukcí, stav Shell & Core, tedy bez finálních úprav interiéru podlahy, dveře, kuchyně, obklady (dokončení dle přání zákazníka/DOHODA), umístění v oblíbené lokalitě s vynikající alternativní dostupností do Prahy a na dálnici D1. Jedná se o nepodsklepenou samostatně stojící zděnou novostavbu rodinného domu, jejíž výstavba právě probíhá, dispozičně orientovanou JV, se dvěma NP s dispozicí 4+kk. Konstrukční a materiálové charakteristiky rodinného domu včetně projektové dokumentace jsou k dispozici u makléře. Nadstandardně vybavený RD bude disponovat mj.: alarmem, rozvodem PC, rozvodem kamerového systému. Vytápění bude všude podlahové a bude řešeno plynovým kotlem. Koupelny a WC budou vybaveny moderními keramickými obklady, dlažbou a sanitární technikouumyvadla, sprch. kout, vana, WC a to vše dle dohody a na přání zákazníka. Součástí příslušenství tohoto konkrétního domu bude akumulační nádrž na dešťovou vodu a zasakovací jímka, oplocený pozemek, zpevněné plochy kolem domu, upravené terénní plochy. Obec Mnichovice se nachází v okrese Praha východ a cca 6 km JV od Říčan. V obci je rozšířená občanská vybavenost. MŠ, ZŠ, obchody a restaurace, další rovněž pak v Říčanech (8 km), kompletní vybavenost se nachází v Praze. Dopravní dostupnost je vynikající. Sjezd na dálnici D1 v dosahu 2 km (EXIT 21 Mnichovice) a dále je k dispozici MHD, BUS SID, ČD). Nemovitost je umístěna v klidné východní části obce a je situována ve stabilizované lokalitě rozptýlené zástavby rodinných domů, na okraji obce (žádná další výstavba), podél zpevněné komunikace, která umožňuje bezproblémový přístup k nabízené nemovitosti. Předání nemovitosti plánováno dle dohody na 2025/26. Ve stejné lokalitě současně probíhala výstavba tří domů, které jsou identické. Jeden je již prodán, takže nyní lze vybírat ještě ze dvou RD a pozemků. Nabízíme výhodné financování. Pro více informací volejte makléře.


