Prodej - zemědělský objekt, 5 058 m²
Prodej zemědělské usedlosti se souborem pozemků, 5.058 m2, Mladošovice
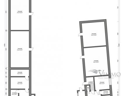
Nabízíme Vám rozlehlou zemědělskou usedlost o celkové zastavěné ploše 1.176 m2 a s dalšími pozemky (travní porost, zahrada) o výměře 3.882 m2. Venkovské stavení se dvěma čísly popisnými, jedna polovina po částečné rekonstrukci (kuchyňská linka, koupelna se sprchovým koutem, nové podlahové krytiny, omítky atd), druhá část v původním stavu. Dům je napojen na elektrickou energii, obecní vodovod, dále na pozemku vlastní studna, odpadní vody svedeny do septiku. Vytápění krbovými kamny, kotel s ústředním topením, ohřev vody zajišťuje bojler. Zemědělská usedlost se nachází na okraji obce Mladošovice v krásné lokalitě Třeboňska (cca 10 minut jízdy autem do Třeboně s veškerou občanskou vybaveností - lékařská péče, školka, základní škola, střední školy, nákupní možnosti, dostatek kulturního vyžití nebo cca 7 minut jízdy autem do Borovan s veškerou občanskou vybaveností). V Mladošovicích základní občanská vybavenost včetně mateřské školy, knihovny a hospody. Krásná, klidná lokalita, bezproblémoví sousedé, ideální k poklidnému rodinnému bydlení nebo vhodné k rekreaci (mnoho cyklotras, rybníkářská oblast). Vhodné k dvougeneračnímu bydlení nebo spojení bydlení s podnikáním (část lze využívat ke krátkodobým pronájmům díky krásné lokalitě Třeboňska). K domu lze koupit další pozemky. Energetickou třídu PENB "G" uvádíme z formálních důvodů, dle zákona č. 103/2015 Sb. Po obdržení průkazu energetické náročnosti budovy (PENB) bude uvedena skutečná hodnota, děkujeme za pochopení. Cena včetně provize RK a právního servisu. Lze financovat hypotečním úvěrem, v rámci služeb RK nabízíme zajištění financování. Pro více informací nás neváhejte kontaktovat. Veškeré údaje obsažené v tomto inzerátu mají pouze informativní charakter a nejsou tak ve smyslu občanského zákoníku: (i) návrhem na uzavření smlouvy dle § 1731 a § 1732; ani (ii) veřejným příslibem dle § 1733. Uveřejněním tohoto inzerátu nevzniká uživateli služby ani jakýmkoli třetím osobám nárok na uzavření smlouvy, zejména se vylučuje aplikace § 1732 odst. 2 občanského zákoníku.


