Prodej - dům/vila, 119 m²
Prodej rodinného domu 5+kk v Mirošově, ul. Nové sídliště
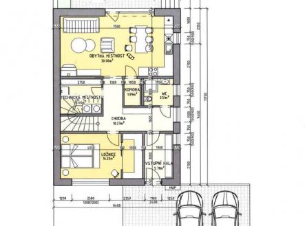
Exkluzivní novostavba zděného patrového rodinného domu o dispozici 5+kk se dvěma koupelnami v klidné části obce Mirošov, v těsné blízkosti Brdských lesů, se zahradou o vel. 487 m2. Dům, je postaven z kvalitních materiálů ve vysokém standardu. Disponuje dubovými podlahami, HS portálem, trojskly, podlahovým topením, bez falcovými dveřmi, krbem v obývacím pokoji, dále plně vybavenou moderní kuchyňskou linkou se spotřebiči (varná deska, digestoř, mikrovlnná trouba, trouba, myčka, lednice s mrazákem). Z obývacího pokoje je také vstup na terasu s markýzou, která nabízí výhled do zahrady. Před domem jsou k dispozici tři parkovací místa. Součástí je také zahradní domek o rozměrech 2,5x 5 m. V obci Mirošov naleznete veškerou občanskou vybavenost jako je ZS, MŠ, zdravotní centrum, poštu, obchody, autobusové i vlakové spojení. Nájezd na dálnici D5 vzdálen 8 km. Kompletní dokumentace k dispozici na prohlídce.


