Prodej - dům/vila, 721 m²
Prodej rodinného domu 721 m² k rekonstrukci, Miroslav
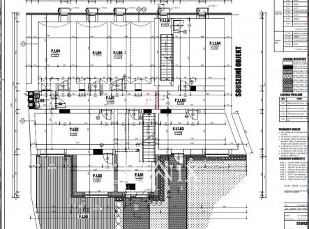
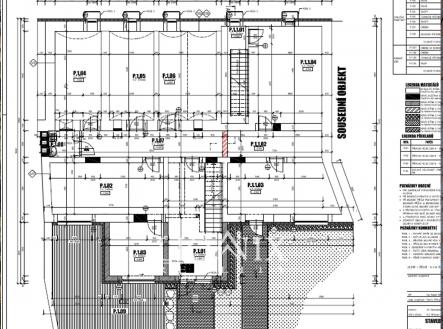
Hledáte zajímavou investici na jihu Moravy kousek od hranic s Rakouskem s vynikající dostupností služeb a zároveň přírody? Podívejte se na tuto nabídku. Původní rodinný dům je navrženo přestavět na dva samostatné RD. Bude se v něm nacházet RD a 3 bytové jednotky. Jedná se o změnu dokončené stavby. - Celková zastavěná plocha: 239,30 m2 - Užitná plocha: 721,30 m2 Objekt se nachází v zastavěném území obce. Pozemek je rovinatý. Postaven je v řadové zástavbě, přístup do objektu bude orientován na jih, přístup na pozemek bude umístěn na jižní straně parcely. Navržen je jako dvoupodlažní, nepodsklepený, stavba je zděná zakončená je sedlovou střechou z vaznicové soustavy. Půdorys objektu RD je obdélníkový s vnějšími rozměry cca 10x8 m. Střecha bude plochá jednoplášťová. Objekt S01 Napojení na místní komunikaci bude ze severní strany z ulice Mlýnská. Parkování zajištěno na pozemku 3 venkovními stáními na zpevněné ploše. Vstup do domu je ze severní strany z venkovního parkoviště. V prvním podzemním podlaží se nachází sklep, hlavní vstup s chodbou, technická místnost, schodiště do 1.NP. V 1.NP se nachází ložnice, obývací pokoj s kuchyní, koupelna a chodba se schodištěm do 2.NP. V 2.NP se nachází dvě ložnice, koupelna a chodba se schodištěm. Objekt S02 Napojení na místní komunikaci bude ze severní strany z ulice Mlýnská. Parkování zajištěno na pozemku 4 venkovními stáními na zpevněné ploše. Vstup do domu je ze severní strany z venkovního parkoviště. V prvním podzemním podlaží se nachází sklepy, skaldy, hlavní vstup s chodbou, technická místnost, úklidová místnost, schodiště do 1.NP. V 1.NP se nachází 2 bytové jednotky. Dvě o velikostech 2+kk. V každé bytové jednotce se nachází koupelna s WC. V 2.NP se nachází 1 bytová jednotka o velikosti 4+1. V bytové jednotce se nachází koupelna s WC. Bytová jednotka má k dispozici venkovní terasu. Celý dům i s pozemkem se nabízí v rozestavěném stavu s projektem, technickou správou, půdorysy atd..


