Prodej - obchodní prostor, 1 080 m²
Prodej multifunkční nemovitosti, 1080 m2, Benátecká Vrutice, Milovice
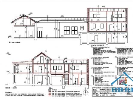
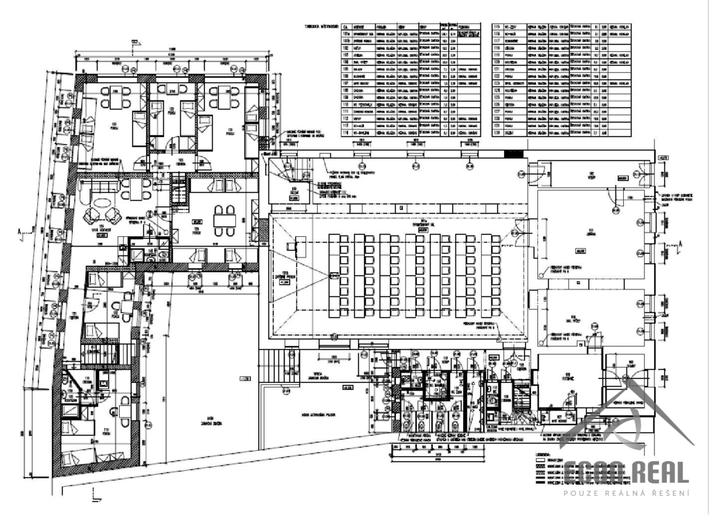
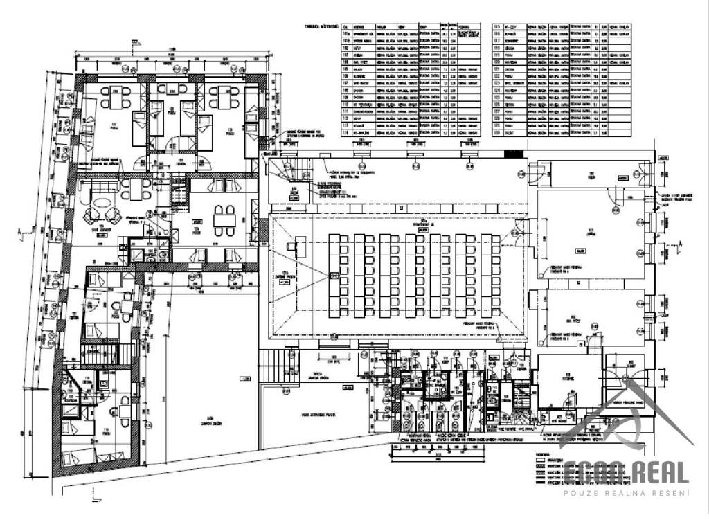
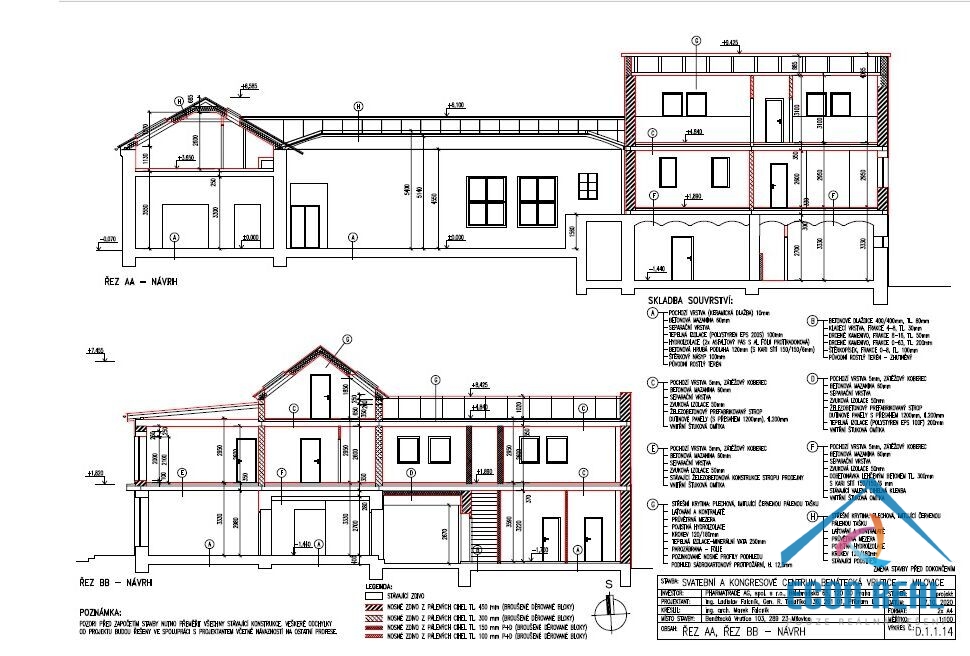
Společnost ECON REAL s.r.o. si Vám dovoluje nabídnout prodej multifunkční nemovitosti v Benátecké Vrutici, Milovice, v docházkové vzdálenosti od zábavního parku Mirakulum, která nabízí široké možnosti využití. Původní záměr majitelů, dle vydaného stavebního povolení, bylo vytvořit svatebně - kongresové centrum s restaurací, obchodem (či výrobnou) a s ubytovacími kapacitami (apartmány i samostatné pokoje), neboť podobná nemovitost (určité centrum služeb) se v okolí nikde nenachází. Objekt prošel v minulých letech úpravami včetně kompletní elektroinstalace, vodoinstalace, kanalizační přípojky, instalace klimatizací (teplo-chlad), úpravou vnitřních stěn a podlah, vybudováním sanitárního zázemí, výměnou oken i vytvořením ubytovacích místností půdní vestavbou na obou stranách objektu. Rekonstrukce není dokončena, nyní zakonzervována a nemovitost čeká na svého nového majitele, který bude mít vizi přizpůsobit si stavbu ke svým komerčním zájmům. Dominantou vnitřních prostor objektu je prostorný, gotický sál s pódiem, jako stvořený pro organizování svateb, meetingů, kongresů, plesů i společenských akcí. Součástí objektu je i gastro příprava v zázemí tak, aby byl objekt soběstačný, možnost tedy vybudovat restauraci s kuchyní s kapacitou až 100 lidí. Ubytovací části jsou řešeny jak v pravém traktu v přízemí, tak vestavbou v podkroví (třináct čtyřlůžkových a dva trojlůžkové pokoje) s možností až 58 lůžek a s výstupem na terasu. V přízemí, v pravém traktu objektu, se nachází bezbariérově dostupný obchodní prostor s velkými výlohami, využitelný jako prodejna, výrobna, pekárna apod. Vnitroblok skýtá možnost realizace chráněného posezení nebo parkovacích míst. Celková užitná plocha objektu činí 1080 m2. Objekt je napojen na inženýrské sítě (voda, elektrika, kanalizace). Plyn je k dispozici, není však aktuálně napojen do domu. Vedle objektu nevyužívaná studna na pozemku obce. Parkování je možné přímo u nemovitosti na obecních pozemcích, stavba se nachází na pozemku vlastním. Nemovitosti má výhodnou, strategickou polohu - nachází se cca 20 km od Mladé Boleslavi, 30 km od Prahy, 6 km od Benátek nad Jizerou, 11 km od Nymburka.... Technické parametry: 1.PP - sklep 1.NP - gotický sál, gastro provoz s přípravnou, sociální zázemí, obchod se zázemím a vstupem pro zaměstnance, vstup do sklepa, byt správce, vnitroblok Podkroví - ubytovací kapacity na obou stranách objektu, krytá terasa Stavební pozemek: 618 m² Zastavěná plocha: 526,92 m² IS: obecní vodovod, elektro, obecní kanalizace, plyn Klimatizační jednotky Rekonstrukce není dokončená.


