Prodej - dům/vila, 220 m²
Rodinný dům v Milevsku
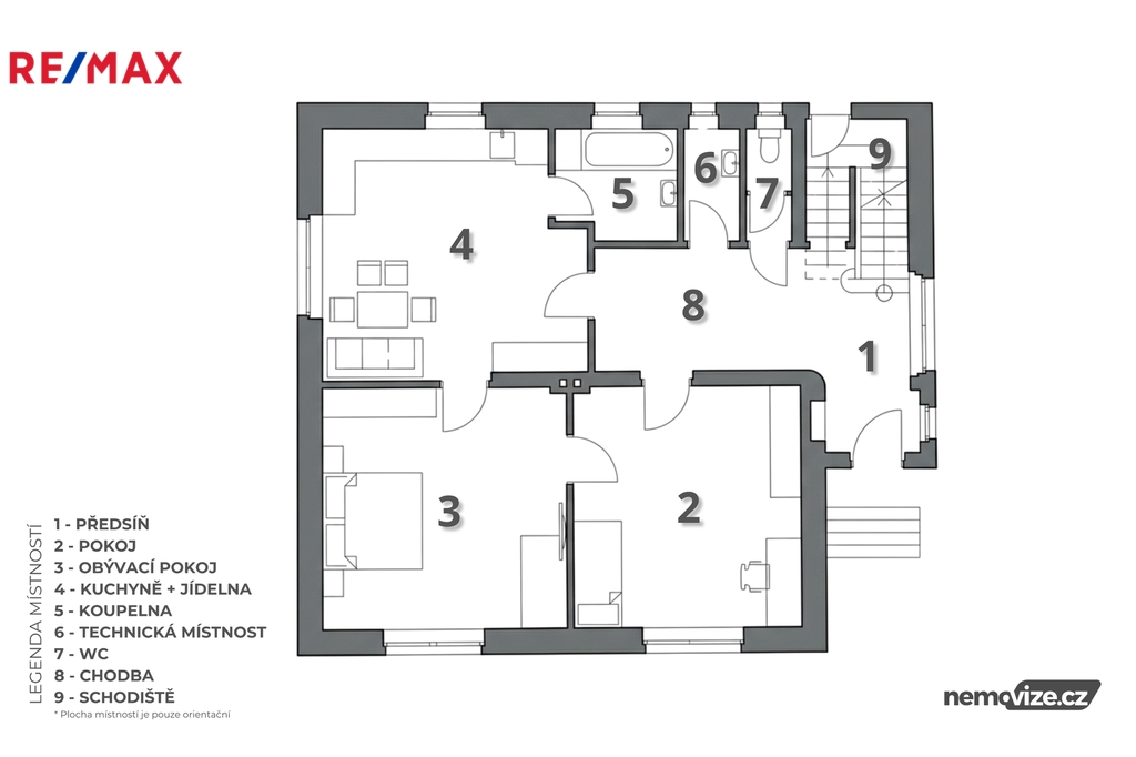
Nově vám k prodeji nabízíme zajímavý rodinný dům v Milevsku, který nabízí široké možnosti využití – ideální jako dvougenerační bydlení nebo jako komfortní domov pro běžnou rodinu. Nemovitost se nachází v klidné a vyhledávané ulici Jeřábkova, v blízkosti centra Milevska s dobrou občanskou vybaveností, dostupností škol, mateřských škol a zdravotnických služeb. Přímo naproti domu najdete například Mateřskou školu Sluníčko a 1. základní školu T. G. Masaryka je vzdálena jen pár metrů, díky čemuž je lokalita atraktivní pro rodiny s dětmi. Ve městě jsou dále obchody, restaurace, poliklinika a dobré dopravní spojení. Dům stojí na prostorném pozemku o celkové velikosti 917 m² a je v původním stavu, určený ke kompletní rekonstrukci, nabízí tak novému majiteli jedinečnou příležitost přetvořit si interiér i dispozice podle svých představ. Nemovitost disponuje garáží, kterou oceníte zejména v zimním období. Dům díky své velikosti a členitosti je vhodný k rozdělení na dvě samostatné části či jednotky, což poskytuje možnost využití jako dvougenerační bydlení. Velkou devízou je i výhled ze zahrady, která je dostatečně velká a umožňuje soukromí i zahradní úpravy podle vašich představ. Pozemek a dům se nachází ve stabilní části Milevska, mimo záplavová území a v dostupné vzdálenosti od hlavních komunikací i centra. Dům je vhodný spíše pro ty, kteří hledají projekt s potenciálem – s investicí do rekonstrukce můžete vytvořit prostorné a komfortní bydlení přesně podle svých potřeb. Díky své poloze v klidné ulici, blízko služeb a škol, s velkou zahradou a garáží představuje tato nemovitost zajímavou nabídku na trhu. U tohoto domu je možné též využít dotační program ,,Oprav dům po babičce” - dotační program zaměřený na komplexní rekonstrukce rodinných domů - především energetické úspory ( např.zateplení, výměna oken, moderní topení, solární systémy ). Přijďte objevit potenciál, který tento dům nabízí, a vytvořte si domov, který bude odpovídat vašim představám. Těšíme se na prohlídce. Prodávající si vyhrazuje právo vybrat kupujícího na základě jím zvolených kritérií.


