Prodej - obchodní prostor, 300 m²
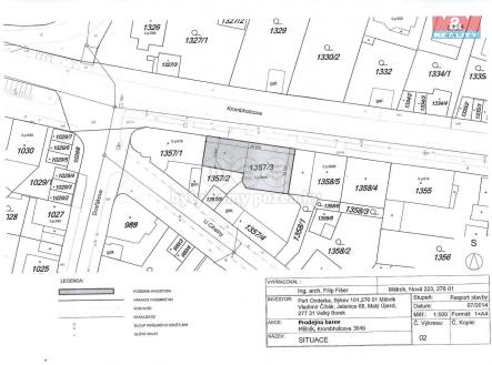
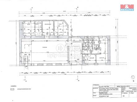
Prodej obchodního objektu, 300 m², Mělník, ul. Krombholcova
Nabízíme k prodeji obchodní objekt nedaleko centra Mělníka. Tato cihlová stavba o užitné ploše cca 300 m² je přízemní. Největší místnost má cca 100 m2 a v současné době je využívána jako prodejna. Dalších šest místností je možno využít jako sklady a kanceláře. Objekt je v dobrém stavu , v současné době je pronajat a nabízí se k prodeji s nájemní smlouvou. Díky své poloze poblíž centra je ideálním místem pro obchody, kanceláře nebo služby. Dobrá dostupnost a zvýšený pohyb lidí zajišťují potenciál pro možnosti podnikání. Pro více informací nás neváhejte kontaktovat.


