Prodej bytu, 3+1, 70 m²
Prodej bytu 3+1, 70 m², Mělník, ul. Pivovarská
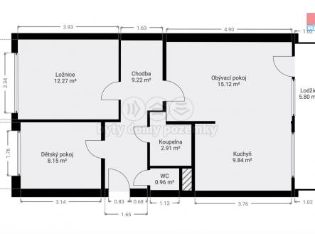
Nabízíme k prodeji světlý a prostorný družstevní byt 3+1 o celkové užitné ploše 70 m², který se nachází v klidné části Mělníka. Byt je situován ve třetím patře čtyřpatrového panelového domu. Nemovitost prošla nedávnou rekonstrukcí, takže je ve velmi dobrém stavu a připravena k okamžitému nastěhování. K bytu náleží lodžie, ideální pro relaxaci, dále sklepní kóje a komora, které poskytují dostatek úložného prostoru. Lokalita nabízí veškerou občanskou vybavenost, včetně obchodů, škol a zdravotnických zařízení v blízkém okolí. Byt je ideální pro rodiny hledající pohodlné bydlení v příjemném prostředí. Neváhejte a domluvte si prohlídku.


