Prodej - dům/vila, 246 m²
Prodej rodinného domu v Měchenicích u Davle
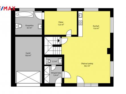
Prodej rodinného domu v Měchenicích u Davle – unikátní lokalita s výhledem na Vltavu Nabízíme Vám k prodeji krásný rodinný dům, který se nachází ve stráni nad Vltavou ul. Na Vyhlídce II, v malebné lokalitě Měchenic u Davle. Tento dům, situovaný v naprosto klidné lokalitě, nabízí nádherný výhled do okolní krajiny, což z něj činí ideální místo pro rodinné bydlení nebo rekreaci. Základní informace: • Plocha pozemku: 846 m2 • Zastavěná plocha: 128 m2 • Dispozice: 3 nadzemní podlaží • Počet koupelen: 3 Tento dům je navržen tak, aby byl ideální pro dvougenerační bydlení, s dostatečným soukromím pro každou generaci. 1.NP – možnost samostatného bytu 2+ kk s koupelnou s WC 2. NP – hlavní vstup do domu, pokoj pro hosty s koupelnou s WC, další samostatné WC, velký obývací pokoj s kuchyní a krbem, z obývacího pokoje je přístup do zimní zahrady, která umožňuje užívat si příjemné chvíle v každém ročním období. 3.NP 4x pokoj ze kterých s je možný vstup na terasy, koupena s WC Ohřev vody a topení zajišťuje tepelné čerpadlo, což přispívá k nízkým nákladům na energie. Na pozemku se nachází vířivka a sauna, které zajišťují dokonalý relax a odpočinek po náročném dni. Na pozemku je montovaný domek na uskladnění spousty dalších věcí. Součástí zahrady je letní kuchyň, která je ideálním místem pro vaření a přípravu jídel v teplých letních dnech. Tato kuchyň je perfektní pro rodinné grilování nebo posezení s přáteli, Pokud hledáte místo, které nabízí jak komfortní bydlení, tak i únik do přírody, je tento dům v Měchenicích ideální volbou. K domu je kompletní projektová dokumentace – možno vidět na vyžádání. Prodávající si vyhrazuje právo vybrat kupujícího na základě jím zvolených kritérií.


