Prodej - dům/vila, 267 m²
Prodej velkého domu, Luleč, okr. Vyškov, se zahradou a lesem , 1785m2
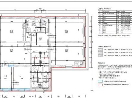
Nabízíme vám k prodeji dům se třemi samost. jednotkami 2x 2+kk a 1x 5+1, s parkovacími místy a zahradou a vlastním lesem, CP je 1785m2, ZP je 587m2, UP-cca 267m2. Zahrada-1198m2. Jedná se o samostatný, zděný dům, se dvěma NP se zahradou. Jednotku 5+1 lze násl. rozdělit na 2 jednotky 2+kk. Tentokrát v malebné obci Luleč, okres Vyškov, od Brna necelých 30min, východním směrem do Vyškova jen 10min. s výhledem do okolí. Je ve fázi uzavřené hrubé stavby okny, dveřmi a střechou. Přízemí - dvě jednotky 2+kk, každá- 60m2 s terasou 21m2. Patro jednotka- 5+1 /147m2, kterou lze následně rozdělit stavebně na dva 2+kk. Vše na vlastním pozemku. Dům je připojen na El 240/400V, voda- vlastní studna, dešťová voda je svedena do retenční nádoby, odpady -čistička odpadní vody. Zahrada je jak před domem tak i za ním. Nachází se v klidné části obce. Je určen k dostavbě s platným St. povolením. Jednotky jsou zapsány do KN, tz. že jednotky mají vlastní číslo a mohou být prodány samostatně. Náklady na dokončení domu -cca 5,6mil. Kč.dle rozpočtového ceníku. V místě je občanská vybavenost, ke koupání je tu zatopený lom. Výborná dostupnost do Vyškova a do Brna. Doporučuji i videoprohlídku. Více info u makléře.

