Prodej - pozemek pro bydlení, 2 242 m²
Prodej exkluzivního stavebního pozemku 2 242 m² – Luka nad Jihlavou
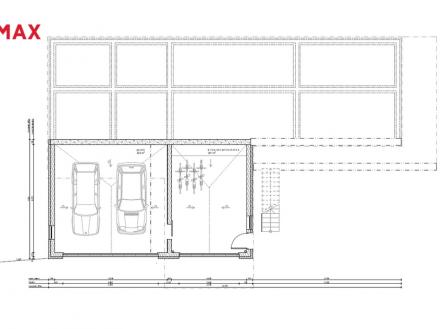
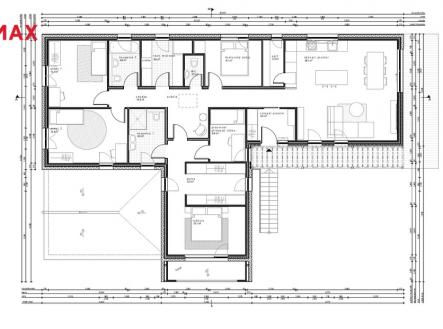
Místo, kde má smysl stavět. Nabízím stavební pozemek o výměře 2 242 m² v jedné z nejžádanějších částí Luka nad Jihlavou. Pozemek je oplocený, mírně svažitý a orientovaný na jih, vyvýšený nad okolní zástavbou. Díky tomu poskytuje krásný výhled na krajinu, dostatek světla i naprosté soukromí. Součástí prezentace jsou i vizualizace vytvořené přesně podle projektu, který má vydané stavební povolení. Díky tomu získáte reálnou představu, jak může dům na pozemku vypadat a jak přirozeně zapadne do okolní krajiny. Proč právě tento pozemek? • jedno z posledních volných míst v této lokalitě • vydané stavební povolení – moderní bungalov ve tvaru T, se dvěma dvojgarážemi a obytným patrem • kompletní projektová dokumentace v ceně – včetně vizualizací, zaměření, souhlasů a studií • možnost rozdělení na dvě stavební parcely a výstavby dvou rodinných domů • územní plán dovoluje i rodinný dům se třemi bytovými jednotkami • napojení na všechny inženýrské sítě – voda, elektřina, kanalizace i plyn Technické údaje • Celková plocha: 2 242 m² • Zastavěná plocha dle projektu: 222 m² (10 %) • Zpevněné plochy: 399 m² (18 %) • Stávající garáže: 52 m² (2 %) • Zeleň: 1 570 m² (70 %) Na pozemku je voda a elektřina (nová přípojka dimenzovaná na dva domy), kanalizace je v dosahu cca 20 m. Součástí prodeje je i vlastní příjezdová cesta, která navazuje na obecní komunikaci. Lokalita Luka nad Jihlavou – městys s úplnou občanskou vybaveností, školou, školkou, lékaři, obchody, službami i sportovišti. Pravidelné autobusové i vlakové spojení zajišťuje snadnou dostupnost do Jihlavy (12 km). Lokalita patří mezi nejvyhledávanější v okolí – díky klidné atmosféře, zeleni a přirozenému propojení s městem. Závěr? Tento pozemek není jen prázdný prostor na mapě. Je to připravený prostor pro váš nový začátek, promyšlený do posledního detailu – s projektem, povolením i všemi souhlasy. Nabízí vše, co potřebujete k realizaci vysněného domova, a přitom dostatek svobody dotvořit si ho podle sebe. Stačí začít stavět. Pokud hledáte pozemek s příběhem, výhledem a jistotou, že investujete do kvality, tady jste na správné adrese. Ráda vám vše představím osobně.


