Prodej bytu, 3+kk, 87 m²
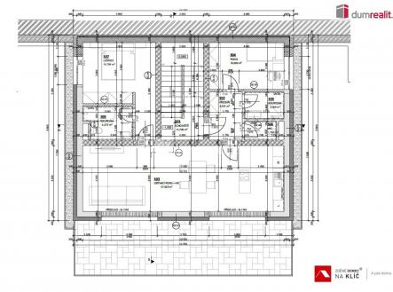
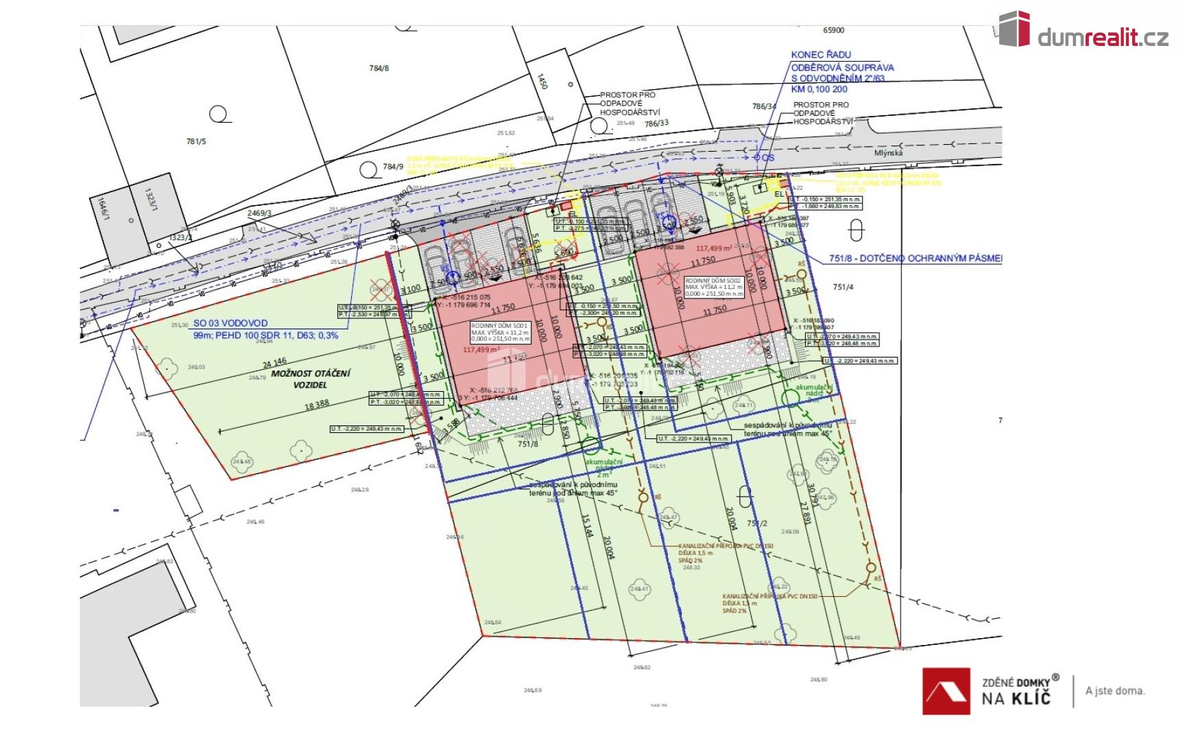
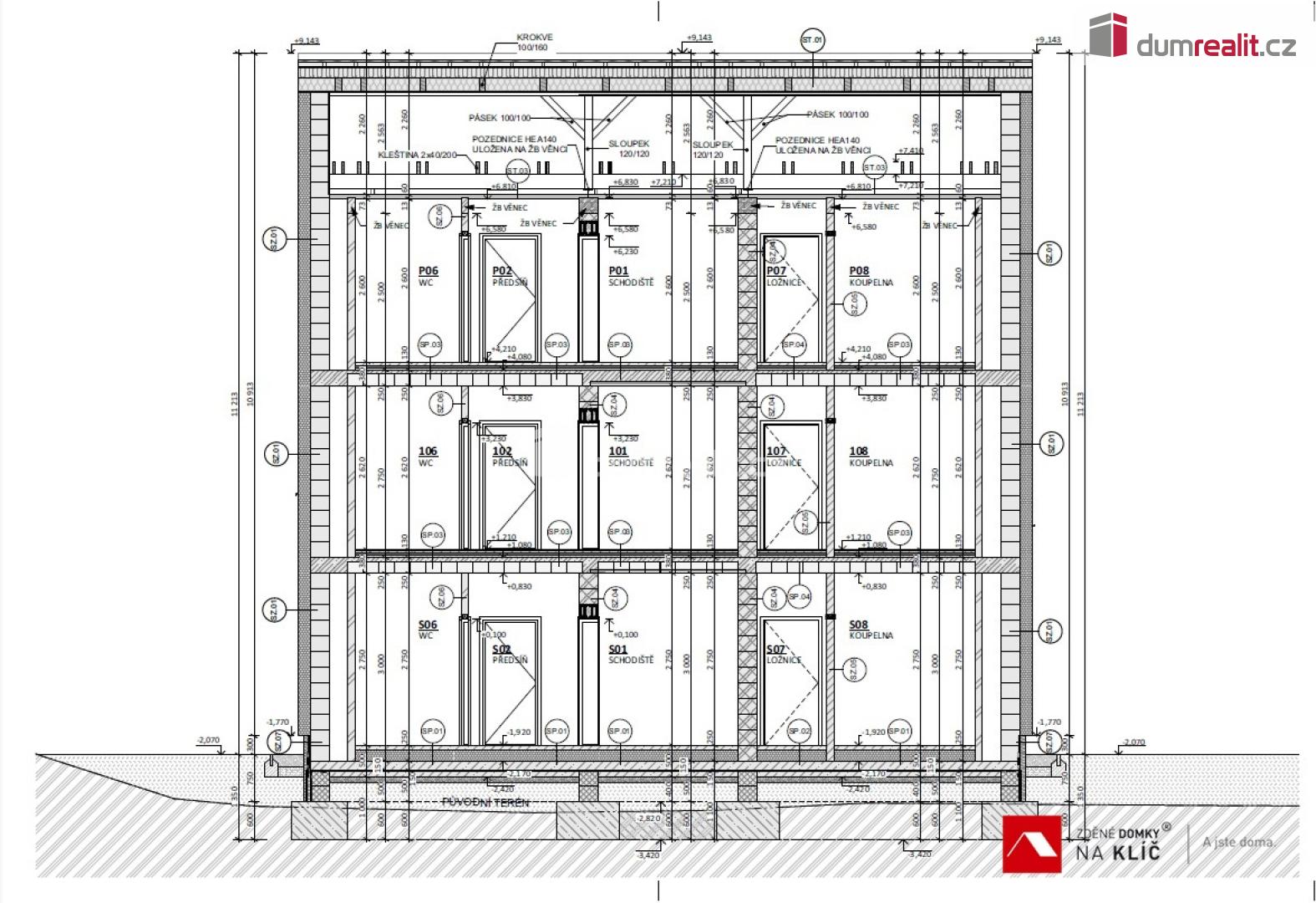
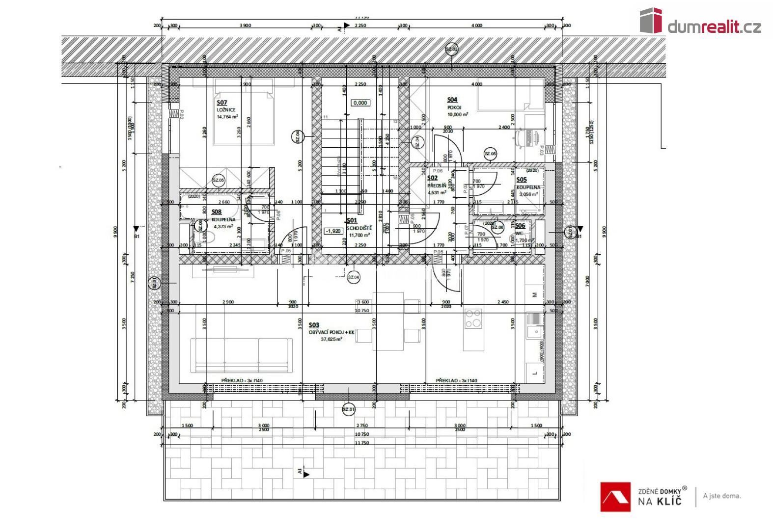
Novostavba bytu 3+kk v centu Luhačovic o výměře 87,75 m2 s terasou 30, vlastní zahradou a parkovacím
Naše společnost Vám zprostředkuje exkluzivní nabídku výstavby prostorného bytu 3+kk na klíč v Luhačovicích s terasou, zahradou a parkovacím stáním. Máme pro vás jedinečnou příležitost vlastnit luxusní byt 3+kk o podlahové výměře 87,75 m² v centru Luhačovic s terasou o rozloze 30 m² a soukromou zahradou o velikosti 150 m². Tento moderní byt bude situován v nově vznikající tří podlažní budově ve spodní části se vstupem na terasu. Výhodou je vlastní parkovací stání o rozloze 15 m². Součástí ceny je také třetinový podíl na okolních a zastavěných pozemcích. Byt je navržen pro klienty, kteří ocení kvalitní provedení a prostorné interiéry. Dispozice bytu je ideální pro rodinu či páry, kteří hledají moderní a komfortní bydlení v centru Luhačovic. Obývací pokoj s kuchyňským koutem o velikosti 38m² byl navržen tak, aby navazoval na prostornou terasou 30 m² a zároveň na vlastní zahradu 150 m². Dispozice dále nabízí ložnici 15 m² a dětský pokoj 10 m², samozřejmostí jsou také dvě samostatné koupelny s WC + další samostatné WC. Nabízíme vám možnost bydlení spojené s pohodlím v samém centru Luhačovic a zároveň se skvělou dostupností všech služeb. Nechte se okouzlit krásou Luhačovic a zainvestujte do svého vlastního bydlení. Buďte první, kdo využije této jedinečné nabídky! Fotografie interiéru jsou pouze ilustrativní. Pro více informací nás neváhejte kontaktovat. Ev. číslo: 653928.


